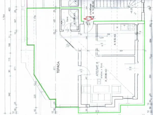
АДРЕС Недвижими Имоти продава ПРИ ИЗКЛЮЧИТЕЛНИ ПРАВА двустаен имот със статут на "Ателие" в кв. Смилово, гр. Сандански. Застроена площ - 69.48 кв. м, разпределена на просторна стая (с излаз на 2 тераси), втора стая, санитарен възел, превъзходна панорамна тераса и антре. Изложението е североизток/северозапад, което осигурява добра естествена осветеност и панорамна гледка на 180 градуса. Състояние на имота: стени - фино завършени, тавани - с фибран, дограма - от PVC, метална входна врата, канализация и водопровод - на тапа, електроинсталация - до точка, с монтирани ключове и контакти. Предлага се опция за покупка на съседния имот, също със статут на "Ателие", с площ от 54.94 кв. м и продажна цена в размер на 42000 евро. МЕСТОПОЛОЖЕНИЕ. Сградата се намира в кв. Смилово, ул. Стефан Веркович № 12. Предлага панорамни гледки към града и планината. Улицата е бетонирана, паркирането е свободно в района на сградата. На пешеходно разстояние от сградата се намира известният супермаркет Грамос, в който се предлагат хранителни стоки, готвена храна, плодове и зеленчуци и домашни потреби. СГРАДА. Сградата е със стоманобетонна конструкция, стените са от тухли, итонг и газобетонни блокчета. Построена е около 2015 г., притежава удостоверение за въвеждане в експлоатация № 24/06.06.2025 г. Поддържа се в сравнително добро общо състояние, покривът е ремонтиран преди 1 година. ПРЕДИМСТВА. - панорамни гледки от всички прозорци; - удобен достъп по поддържан път; - близо до известния супермаркет Грамос; - на пешеходно разстояние от парка. Купувачите заплащат агентско възнаграждение в размер на 3% от продажната цена. Обади се сега и цитирай този код Z-665458

Вход


Или
Все още нямаш профил?
Създай профил
1 / 21













































2-стаен, Сандански, Югозападна България
€53,000 / 103,659 лв.
(€763 / 1,492 лв. / кв.м)
Характеристики
квадратура
брой стаи
година на строеж
етаж
Описание
Прочети още
Училища и детски градини
Детски градини
Начални
Основни
Средни
Няма намерени детски градини