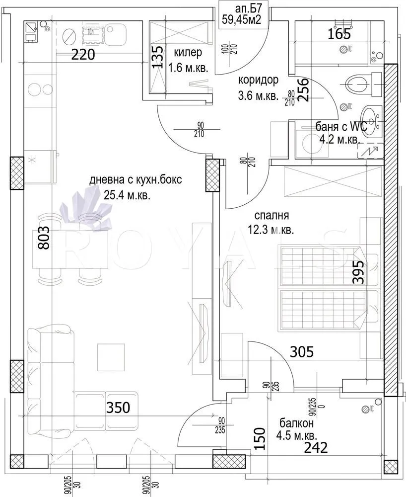
Повече от просто жилище — това е функционален комфорт с гарантирано качество!!!ДВУСТАЕН апартамент в нова модерна сграда ЗОРНИЦА от строительной компании «MAIT»! В новоразвиващия се микрорайон на квартал «Владиславово»Royals Недвижими имоти предлага за продажба уникален ДВУСТАЕН апартамент!!! Той е намира се в квартал, в непосредствена близост до METRO, предоставяйки изобилие от зеленина, чист въздух и пространства за отдих, разходки и спортни активности. Имот е разположен на четверти етаж в модерна деветиетажна сграда сграда с отлично поддържани общи части и контролиран достъп. Апартаментът е със застроена площ от 69.21 кв.м. и се състои от: входно антре, просторна и светла дневна с кухненски кът и излаз на тераса, просторна спалня, баня с туалетна, килер/перално помещение. Към имота има и опция за закупуване на подземно паркомясто.Отлична локация – комплексът разположен близо до парка, Кауфланд, Джамбо, ресторанти и кафенета, множество спирки на градския транспорт за лесно и бързо придвижване до желана дестинация !Строителство с висококачествени экологични материали и модерни технологии.Апартамент с висококачествена 5-камерна дограма, надеждна и безшумна асансьорна инсталация, омекотител за вода, осигуряващ по-дълъг живот на електроуредитеЗа повече информация и огледи се свържите с нас на 088 4939484 и цитирайте код нана офертата: 36494ROYALS Недвижими имоти ще бъде до вас през целия процес на сделката – от огледа до финализирането! Осигуряваме пълна юридическа и техническа проверка на имота, както и съдействие за банково кредитиране при преференциални условия. ROYALS Недвижими имоти – Чистота. Детайли. Съвършенство. Още предложения можете да откриете на: https://royals.bg/

Вход


Или
Все още нямаш профил?
Създай профил
1 / 2









2-стаен, Кайсиева градина, Варна
€102,500 / 200,473 лв.
(€15 / 29 лв. / кв.м)
Характеристики
квадратура
брой стаи
Особености на имота
- Просторно жилище
- С паркомясто
- Детски градини
Описание
Прочети още
Наблизо има
В непосредствена близост се намират:
Бар
AJ880м
Банкомат
661м
Ресторант
КОМИТИ899м
Аптека
926м
Паркинг
627м
Кафене
590м
Училища и детски градини
Детски градини
Начални
Основни
Средни
Име
Адрес
Ясла
Разстояние
Детска Градина №36 "Морска Звездица" (С Яслена Група)
с ясла
1,069м.
Ипотечен кредитен калкулатор
Варна Кайсиева градина Двустаен апартамент