Без комисион от купувача. Гъвкави схеми на плащане. Цените са без ДДС.
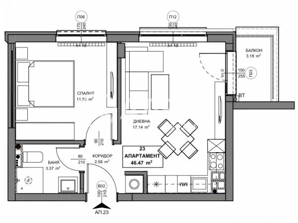
Бюджетен двустаен апартамент с РЗП- 57,02м², ЗП-46,47м² с включен склад 23-2,33м². Разпределение: коридор, дневна с кухненски бокс и трапезария, спалня, баня с тоалетна, балкон. Отопление ТЕЦ. Изложение СЕВЕР/ИЗТОК.
Съвременен жилищен комплекс от затворен тип с контролиран достъп, създаден да осигури спокойствие, сигурност и качествен начин на живот. Проектът се отличава с модерна визия, висок клас строителство и добре планирана среда, съчетаваща функционалност и удобство за ежедневието. Отоплението е предвидено на ТЕЦ. Жилищата ще бъдат с висок клас дограма с троен стъклопакет. Общите части са луксозно завършени с гранит, висок клас асансьор.
Сградата е на 8 етажа с РЗП-5 279 кв.м. върху които са разположени: 47 апартамента, паркоместа и гаражи.
Етапи на строителство:
-
АКТ 14 – декември - 2026 г.
-
АКТ 15 – ноември - 2027 г.
-
АКТ 16 – декември- 2027 г.
Схеми на плащане:
30% на ПД; 30% на АКТ-14; 30% на АКТ-15; 10% на АКТ-16
20 %на ПД; 80% след АКТ16
Всички обекти в сградата се предлагат БЕЗ КОМИСИОН ОТ КУПУВАЧА на цени на ИНВЕСТИТОРА.
Отлична локация за района, удобен транспорт: Метростанция“Обеля“ на 5 минути. Трамвай №6, Автобуси №30,31,41,26 по бул.“Ломско шосе“.
Модерна жилищна сграда с окачена фасада и изпълнена с висококачествени материали, гарантиращи естетика, енергийна ефективност и дълготрайност.
Обеля-2 е бързоразвиващ се квартал с добре изградена инфраструктура. В близост до сградата има:
Детски градини: ДГ 82“Джани Родари“; ДГ 5 .
Училища: ЧОУ “ Дружба“; ЧПГ “ Дружба“;“ 140СУ “Иван Богоров“ .
Медицински услуги: 30-ти ДКЦ, 16-та Стоматологична поликлиника, аптеки.
Магазини и услуги: Супермаркет “Т Маркет“, Хипермаркет “БИЛА“ , банки, заведения, бензиностанции и др.
Спорт и почивка: Спортен център „Кристал“.
Обади се сега и цитирай този код Z-690198



