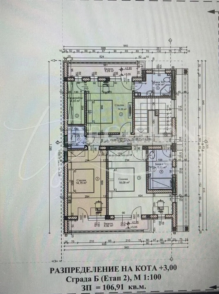
БЕЗ КОМИСИОН ЗА КУПУВАЧА!!!На Вашето внимание предлагаме двуетажна новопостроена къща в границите на гр. Велико Търново. Построена сред красива природа и тишина, само на 10 минути от центъра на града. Застроената площ на имота е 101,68 кв.м., а разгърната застроена площ е 208,59 кв.м. Към имота има обособен малък двор, в който може да се наслаждавате на чистия въздух и спокойствието.Къщата се изгражда с висококачествени материали, проектирана е с внимание към детайла и нужното удобство, което да предложи на бъдещите си собственици.Разпределението на етажите е както следва:На кота 0:00 – Гараж с топла връзка/20.12 кв.м./, антре /6.55 кв.м./, кухня с дневен тракт и просторен хол /40,82 кв.м./, склад – котелно /9,61кв.м./, санитарен възел /2,80 кв.м./, излаз на веранда и вътрешно стълбище към втори етаж.На кота + 3.00 – коридор, спалня 1 /14.75 кв.м./, спланя 2 /14.30 кв.м./, спалня 3 /18.09 кв.м./ със собствен санитарен възел /5.83 кв.м./ и втори санитарен възел на етажа /4.64 кв.м./, мокро помещение /2.29 кв.м./ и две тераси.Имотът е с издадено удостоверение за "груб строеж", като към момента се монтира дограма и предстои монтирането на външна изолация и мазилки.Въпреки че имотът в момента е на етап груб строеж, обявената цена е окончателна и включва всички разходи за неговото довършване и въвеждане в експлоатация.Прогнозно имотът ще бъде въведен в експлоатация в края на лятото.

Вход
Или
Все още нямаш профил?
Създай профил
1 / 7

















Къща, Индустриална зона - запад, Велико Търново
€320,000 / 625,866 лв.
(€1,531 / 2,994 лв. / кв.м)
Характеристики
квадратура
година на строеж
Особености на имота
- Просторно жилище
- Саниран блок
- С гараж
Описание
Прочети още
Наблизо има
В непосредствена близост се намират:
Банкомат
First Investment Bank362м
Ресторант
360м
Аптека
661м
Кафене
779м
Училища и детски градини
Детски градини
Начални
Основни
Средни
Име
Адрес
Ясла
Разстояние
Ипотечен кредитен калкулатор
Велико Търново Индустриална зона - запад Къща
