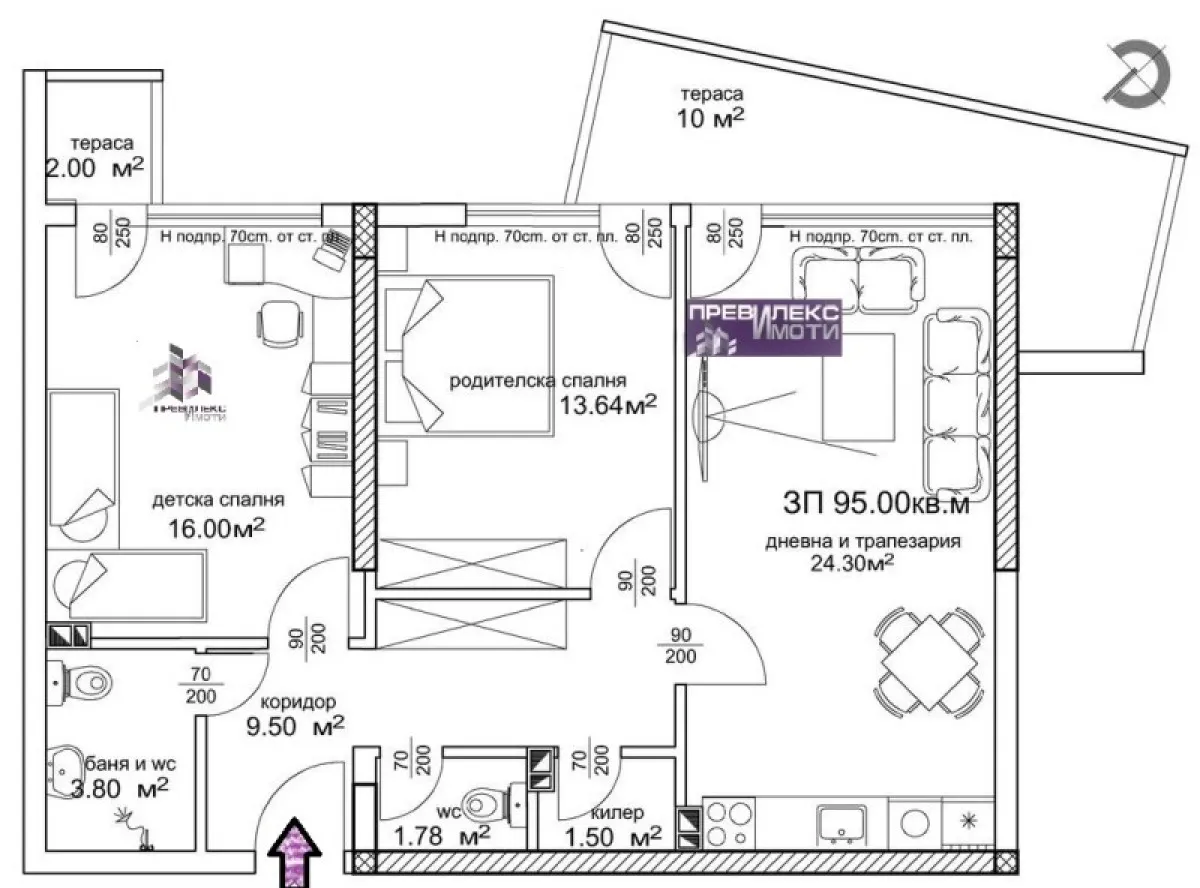
Оферта 1-715, С акт 16. Предлагаме Ви компактен южен апартамент в нова сграда, част от композиция от няколко сгради. Бърз достъп до главни пътни артерии. На близко разстояние от търговска зона в квартала, училище и детска градина. Разпределение на помещенията: дневна с кухненски бокс с излаз на тераса, две спални,склад, баня с тоалетна и отделна тоалетна, втора малка тераса и входно антре. Възможност за закупуване на гараж или парко-място. Доказал се във времето инвеститор с много завършени сгради. Степен на завършване: стени и таван - шпакловка, под - циментова замазка, ВиК до тапа, ел. инсталация до фасунга и ключ, PVC дограма, завършени тераси с гранитогрес и парапет. Луксозно завършени общи части - вътрешни и външни парапети, блиндирана входна, контролиран достъп и електрически безшумен асансьор. Препоръчваме това жилище при избора Ви на нов дом или като подходящ инвестиционен инструмент. Гарантираме, че ще получите необходимото внимание и компетентно съдействие. Ние ще Ви предложим професионално отношение и чрез индивидуален подход ще се стремим да бъдем максимално полезни в търсене на най-доброто решение за Вас. Работим с голям кръг от инвеститори, строители и колеги и се стремим да покрием с максимално изчерпателна информация и оферти зададените от Вас критерии. Съдействаме за получаване на ипотечен кредит за имота, който сте избрали, при най-добри условия за купувача. За повече подробности, проект или оглед сме на разположение на посочения телефон.
1 / 8



















3-стаен, Съдийски квартал, Пловдив
€150,000 / 293,375 лв.
(€1,282 / 2,507 лв. / кв.м)
Характеристики
квадратура
брой стаи
година на строеж
етаж
Описание
Прочети още
Ипотечен кредитен калкулатор
Пловдив Съдийски квартал Тристаен апартамент
Зареждаме...
