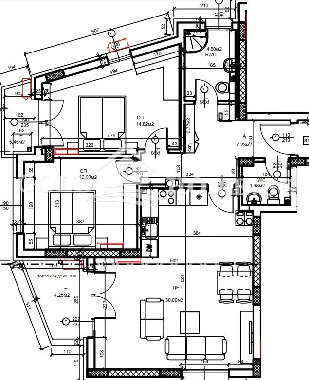
💎 БЕЗ КОМИСИОН КЪМ АГЕНЦИЯТА! - ДИРЕКТНО ОТ ИНВЕСТИТОР! 📢 ОФЕРТА: 12797-'ГОЛД ИМОТИ' Ви представя новострояща се сграда намираща се в кв. Христо Смирненски, в непросредствена близост до АГ 'Селена'.-Сградата предлага възможност за живот в дом, който отговаря на всички съвременни стандарти за комфорт, качество и енергийна ефективност.🎯Видове апартаменти :Предлагаме Ви двустайни, тристайни и четиристайни апартаменти с функционални разпределения.🌆 РазпределениеТристайните жилища се състоят от: входно антре, всекидневна стая с кухненски бокс, две спални, баня с тоалетна и тераса.◉ Налични модули:-96,37кв.м - 144 500 евро-115,48кв.м - 169 800 евро-114,04 кв.м - 171 100 евро✨ Предимства и характеристики на сградата:- Проектът съчетава вътрешния уют и характер с модерна и елегантна архитектура.- Външната архитектура на сградата се характеризира с изчистен и изискан стил.- Вътрешният двор и покривните тераси са озеленени с разнообразна растителност и дървесни видове, подбрани според климатичните особености и изложението на района- За сигурност на живущите ще бъде вградена система за контролиран достъп и видеонаблюдение.◆ За изграждане на сградата са използвани само висококачествени материали:- Конструкцията на сградата е монолитна, скелетно безгредова с тухлени неносещи стени- Външна топлоизолационна система от Baumit- Външните и вътрешни преградни стени се изграждат с тухли Wienerberger- Фасадна външна мазилка в естествени цветове и облицовки от камък.✔️ За строителя:- Проектът се изпълнява от водеща строителна фирма с редица изпълнени обекти.- Качеството на изпълнение е високо, безкомпромисно и това личи по вече построените сгради на инвеститора.✔️Степен на завършеност :Жилищата се издават по БДС: шпакловка и замазка, ел. инсталация до ключ, ВиК до тапа, висок клас ПВЦ дограма и външна блиндирана врата.✔️Етап на строителство:Към момента строителството е на етап среда на строеж. Пусков срок: края на 2027г.💰Схема на плащане:35% при подписване на предварителен договор, 55% на АКТ 14, 10% на АКТ 16.🚗Паркиране:Има възможност за закупуване на паркоместа и гаражи.🎯 Локация:- Намира се в близост до един от най-големите паркове в града '' Отдих и култура'' , ''Гребна база'' , големи търговски вериги, медицински заведения, търговски обекти и всичко необходимо на една ръка разстояние!- Районът е предпочитан както инвестиционно, така и за живеене.➡️'ГОЛД ИМОТИ' Ви предлага да се възползвате от професионално кредитно посредничество чрез Credit Center при ипотека, потребителски кредит и рефинансиране!-УСЛУГАТА Е ИЗЦЯЛО БЕЗПЛАТНА!-ИЗГОТВЯНЕ НА НЯКОЛКО ОФЕРТИ ОТ ВОДЕЩИ БАНКИ!-НАЙ-ИЗГОДНИ УСЛОВИЯ СПРЯМО ВАШИЯТ ПРОФИЛ!-НЕ Е НЕОБХОДИМО ДА СЕ РАЗКАРВАТЕ ВЪВ ВСЕКИ КЛОН НА РАЗЛИЧНИ БАНКИ!➡️ Още атрактивни оферти може да намерите на нашия сайт goldhome.bg📞За повече информация и при интерес за оглед, моля свържете се с нас.

Вход


Или
Все още нямаш профил?
Създай профил
1 / 4











3-стаен, Христо Смирненски, Пловдив
€144,500 / 282,617 лв.
(€1,490 / 2,914 лв. / кв.м)
Характеристики
квадратура
брой стаи
година на строеж
етаж
Описание
Прочети още
Наблизо има
В непосредствена близост се намират:
Бар
Escada Bar&Dinner329м
Банкомат
Postbank297м
Ресторант
Кафе-Ресторант "Finno"304м
Аптека
73м
Паркинг
715м
Кафене
14м
Училища и детски градини
Детски градини
Начални
Основни
Средни
Няма намерени детски градини
Ипотечен кредитен калкулатор
Пловдив Христо Смирненски Тристаен апартамент