ЕРА Фаворит предлага ексклузивно за продажба селски имот с две къщи в него. Парцелът е с площ 1000 кв.м. и се намира в землището на с. Цръклевци, община Драгоман.
В имота са построени две тухлени къщи, като основната къща е двуетажна, със застроена площ 70 кв.м. или РЗП 140 кв.м. Наличен тавански етаж, който може да се обособи като мансардно помещение. Непосредствено дo къщата е изградена лятна кухня - барбекю с площ 25 кв.м.. В двора има кладенец, целогодишно пълен с вода. Допълнително е налична и сонда за вода.
Втората къща също е двуетажна, като на кота 0 е разположен просторен гараж с площ от 50 кв.м. и с възможност да бъдат паркирани в него два багера/автомобила/джипове. Над него има втори - жилищен етаж с три помещения. Двете са преходни, а другото е самостоятелно. Тези помещения могат да се обособят като къща за гости. Има и трето - таванско ниво, достъпно със стълба от външната страна на къщата.
Непосредствено до втората къща се намират селско-стопански постройки - три отделни помещения. Едното от тях би могло да се приспособи за баня с тоалетна за ползване от обитателите на втората къща.
И двете къщи са за основен ремонт. Не са сменени дограмите на прозорците.
Целият имот е обграден с монолитна ограда, която предпазва имота от достъп на диви животни. В двора са посадени различни плодни дървета, както и лозница.
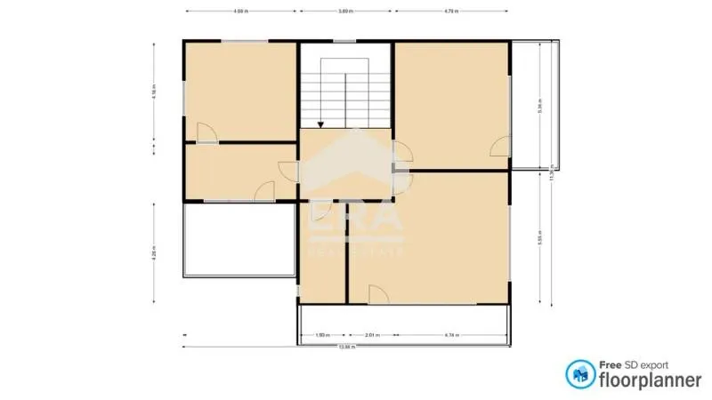
Разпределение:
Къща 1 - двуетажна
Етаж 1: входно антре, коридор, кухня - 12 кв.м., дневна 18 кв.м. с излаз към двора, спалня, тоалетна, килер, веранда;
Етаж 2: дневна с преход към спалня, две самостоятелни спални, баня с тоалетна и тераса към всяка спалня;
Етаж 3: таванско помещение с потенциал. Подпокривното пространство е относително високо и може да се преустрои на малко ателие/мансарда.
Къща 2- къща за гости
Етаж 1: закрит гараж;
Етаж 2: коридор, салон с преход към спалня, втора спалня с панорамна тераса.
Етаж 3: Таванско помещение.
Местоположението на имота е във високата част на китно и живописно село, което граничи с ливади и борова гора. Парцелът е краен и дава възможност за излети в близката гора, разходка сред природата, събиране на лековити билки и ядливи гъби.
Село Цръклевци е разположено в предбалканските възвишения на Стара планина Разположението на селището е под формата на дъга, ориентирана на изток, югоизток и юг. То отстои на 18 км от общинския център Драгоман, с който го свързва път, преминаващ през селата Василовци, Мало Малово, Раяновци и Голямо Малово. На почти същото разстояние селото отстои и от гр. Годеч, на 25 км от Костинброд и на 37 км от София. Надморската височина е 828 м. Постоянно живеещо население - 50 души.
Агенция ЕРА Фаворит е член на НСНИ и администратор на лични данни.
Преди огледа се провежда среща в нашия офис, за да се запознаем с изискванията Ви и за да оформим документи съгласно ЗЗД и ЗМИП.
По време на огледа се подписва Протокол за оглед. За този имот се дължи комисион към агенцията.
Предлагаме Ви юридическо съдействие през целия процес на покупката.
Агенцията съдейства за безплатна кредитна консултация от CREDITERA - лицензиран финансов брокер към БНБ!
Всеки ERA офис е с независимо управление и собственост!
НАШАТА МРЕЖА ИМА ВЕЧЕ ПОВЕЧЕ ОТ 45 ОФИСА! НИЕ СМЕ НАД 300 ОПИТНИ КОНСУЛТАНТА В ЦЯЛА БЪЛГАРИЯ! СТАНИ ЕДИН ОТ НАС!
Оферта 7200054
1 / 14































Къща, Драгоман, Югозападна България
€159,900 / 312,737 лв.
(€842 / 1,647 лв. / кв.м)
Характеристики
квадратура
година на строеж
Описание
Прочети още
Ипотечен кредитен калкулатор
Зареждаме...
