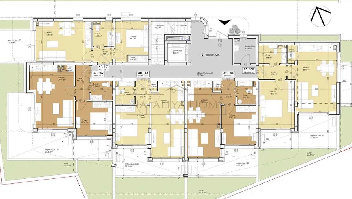
Facebook Pixel 2-стаен в Югоизточна България за 126,600€ - Zimoti
Logo