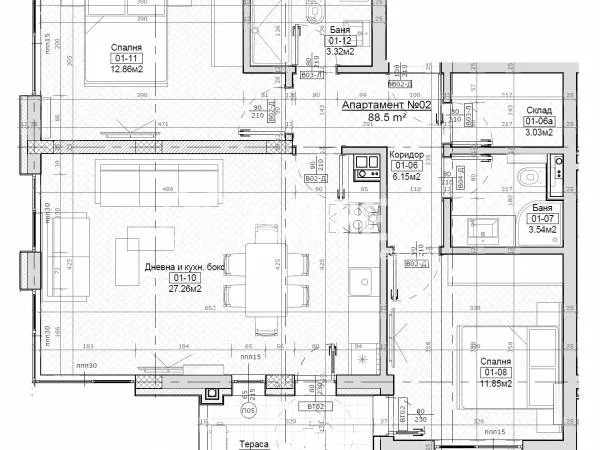
Апартамент 2 със склад 3. Тристаен апартамент на етаж втори, кота +3,20м. с РЗП- 120,49кв.м. и ЗП-88,50кв.м. Разпределение: антре, голяма дневна с кухненски бокс и трапезария-27,26кв.м. , спалня- 12,86кв.м., втора спалня-11,85кв.м., две бани с тоалетни, мокро и тераса -4,61кв.м. Налични ПМ и гаражи.
Нова шестетажна, жилищна сграда в кв. Левски с 16 апартамента – 11 двустайни и 5 тристайни, с гаражи и паркоместа. Разработена е със сутерен, партер, три етажа и две мансардни нива. В подземното ниво са ситуирани гаражи и паркоместа. На партерното ниво има гаражи, жилище и открити паркоместа. Останалите етажи са решени с двустайни и тристайни апартаменти. Складове към всеки имот включени в цената. Предвидено отопление с климатици мултисплит система.
Комуникативна локация с бърз достъп до централните части на града, училища, детски градини, магазини и градски транспорт.
Качествена енергийно ефективна сграда с луксозни общи части. Изпълнява се с висок клас материали: Тухли Wienerberger, Топлоизолационна система BAUMIT, Шесткамерна PVC дограма с троен стъклопакет, Луксозни общи части. Паркоместа – 25 000 €; Гаражи – от 35 000 €
Район с изградена инфраструктура.
Обади се сега и цитирай този код Z-685485


