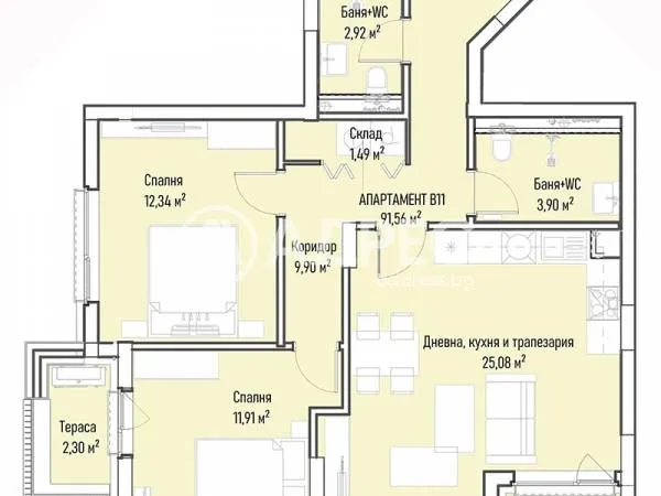
Тристаен апартаммент на етаж ТРЕТИ с изложение Ю/З. Жилището е със ЗП-91.56м2, РЗП-115,97м2 и разпределение: антре дневна с кухненски бокс и трапезария, две спални, две бани с тоалетни, склад и две тераси Към апартамента има и ПМ на ниво -1 с цена-26000 евро. отопление ТЕЦ, отлични общи части. АКТ 16 до месец.
Намира се в кв. "Младост 4", само на крачка от метростанция и магазини "Кауфланд", "Фантастико", "Технополис", "Sport Depot" и "Комо". В непосредствена близост до сградата е Бизнес Парк "София".
Изключително висик клас строителство, поддръжка на сградата, жива охрана
Район с изградена инфраструктура.
Обади се сега и цитирай този код Z-680676





