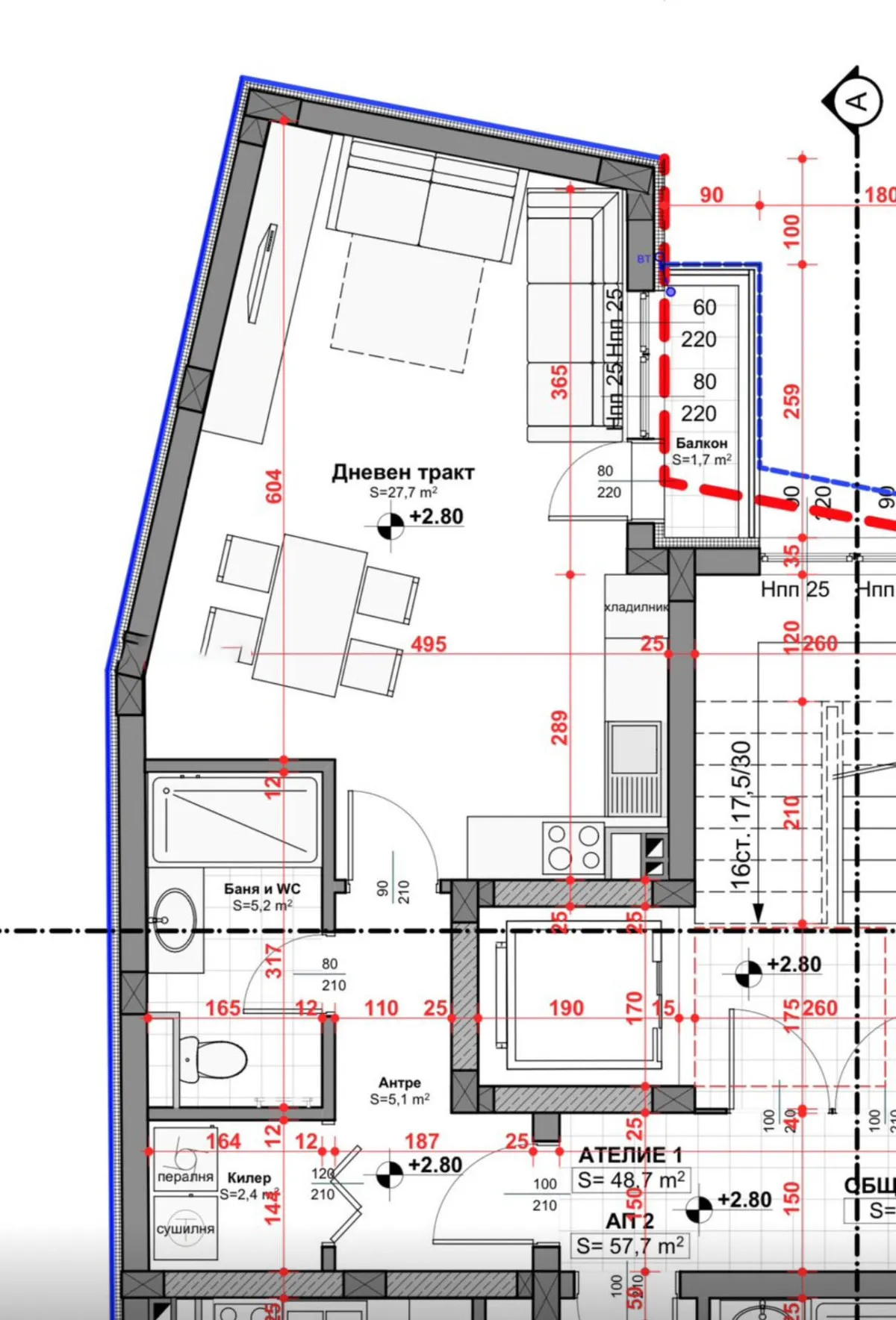
Ателие, което може да се превърне в 2- стаен модерен апартамент, в нова кооперация в Центъра град Русе
Агенция Столица Инвест предлага на Вашето внимание монолитно ателие в района на Центъра в град Русе. Имотът е с източно изложение и с площ от 57 кв.м., като се намира на ет. 1 от общо 4 в луксозна сграда с асансьор и видеонаблюдение. Жилището се предлага по БДС с входна блиндирана врата и с разпределение от коридор, много слънчева и топла всекидневна с тераса, която има възможност да бъде разделена и да се обособи отделна спалня и баня с тоалетна, а отоплението е предвидено на климатици.
Оферта: A-552165
За повече информация и оглед се свържете с нас на телефон 0876 08 13 09, 0877 633 111. Очакваме Ви!
1 / 2









1-стаен, Център, Русе
€81,400 / 159,205 лв.
(€1,428 / 2,793 лв. / кв.м)
Характеристики
квадратура
брой стаи
година на строеж
етаж
Описание
Прочети още
Ипотечен кредитен калкулатор
Русе Център Едностаен апартамент
Зареждаме...
