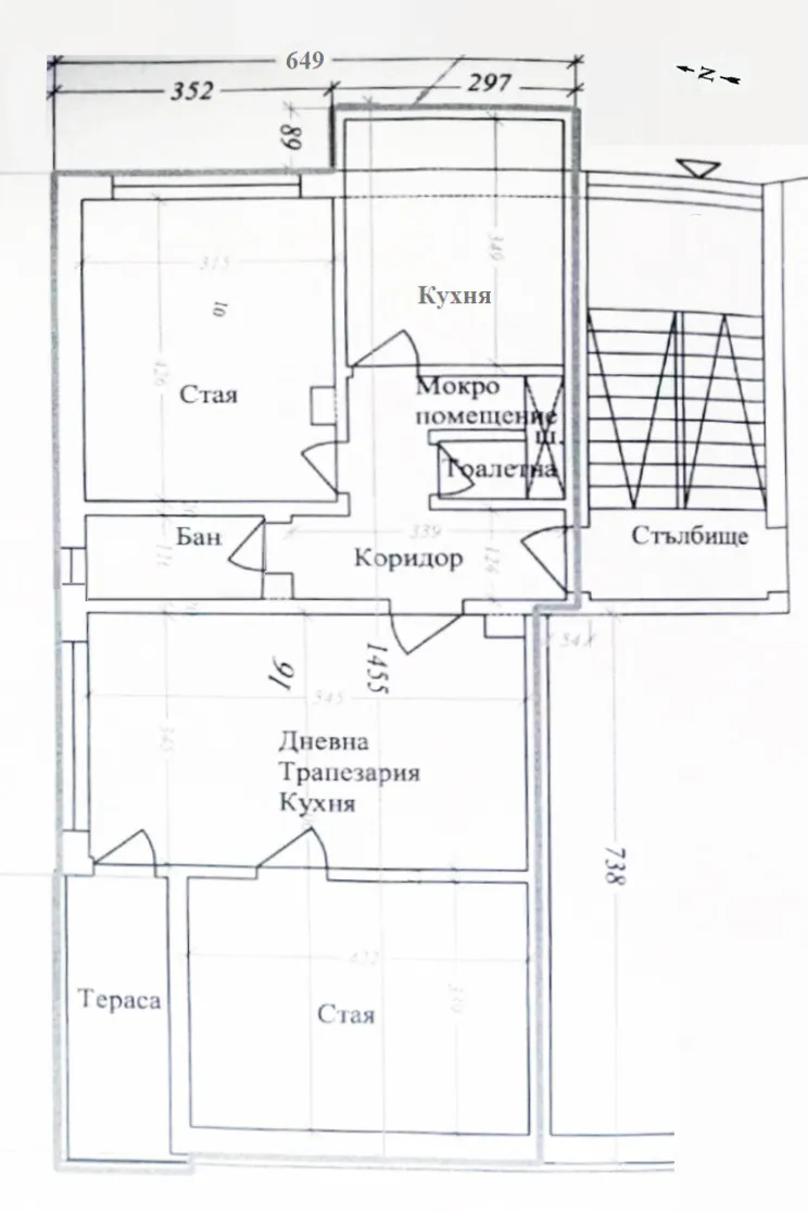
3-СТАЕН апартамент със светла площ по нот. акт 78 м² до метростанция Медицинска академия. Състои се от дневна с тераса, кухня с трапезария, две спални, баня с тоалетна, WC, мокро помещение, входно Г-образно антре, мазе 11 м² и таван 14 м². Изложението е изток-запад. Отоплението е на ТЕЦ.Апартаментът в момента е направен на 4-стаен, като кухнята е освободена за стая или кабинет. Всичките помещения са с естествен паркет, сменени са ВиК и ел. инсталации, както и вертикалните щрангове. Сградата е с поддържани общи части и контрол на достъп. Паркирането е в зелена зона.Намира се до метростанция Медицинска академия, няколко детски учебни заведения, супермаркети, парк и много спирки на градски транспорт.На апартамента е направено замерване, при което са установени 87.5 м² площ, но не са нанесени в нот. акт.Традиции и Бъдещеwww.traditionsandfuture.bgtraditionsandfuture@gmail.comЗа контакт тел: +359 888 86 76 00

Вход
Или
Все още нямаш профил?
Създай профил
1 / 13





























3-стаен, Медицинска академия, София
€349,000 / 682,585 лв.
(€3,966 / 7,757 лв. / кв.м)
Характеристики
квадратура
брой стаи
етаж
Особености на имота
- Детски градини
Описание
Прочети още
Наблизо има
В непосредствена близост се намират:
Бар
439м
Банкомат
Банка Unicredit Bulbank138м
Ресторант
Пей сърце274м
Аптека
Аптека д-р Баев157м
Паркинг
144м
Кафене
135м
Транспорт
Най-близки спирки на градски транспорт до адреса:
Метро
Автобусни линии
Трамвайни линии
27
7
15
4
5
27
7
15
4
5
Училища и детски градини
Детски градини
Начални
Основни
Средни
Име
Адрес
Ясла
Разстояние
Ипотечен кредитен калкулатор
София Медицинска академия Тристаен апартамент