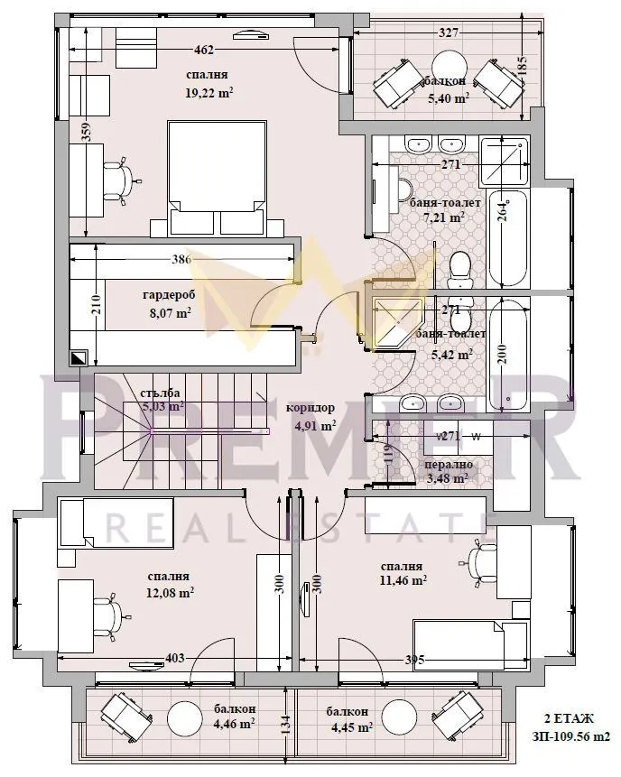
Имоти Премиер представя на Вашето внимание триетажна къща в м-т Зеленика, гр. Варна, част от затворен комплекс от три идентични къщи. Имотът е с РЗП около 277 кв.м. и самостоятелен двор 380 кв.м., разпределен на две нива.📐 Разпределение:🔹 Полуподземен етаж – 91 кв.м. Просторен дневен тракт 54 кв.м. с излаз към двор, спалня, баня с тоалетна, склад/помещение за сауна или фитнес, машинно помещение. Подходящ за самостоятелно домакинство или зона за развлечения.🔹 Първи етаж – 76 кв.м. Антре, дневен тракт 38 кв.м. с кухня и трапезария, кабинет/спалня, баня с тоалетна, веранда 27 кв.м., двор и паркоместа за два автомобила.🔹 Втори етаж – 110 кв.м. Две просторни детски стаи с обща тераса, перално помещение, баня с тоалетна и родителска спалня 20 кв.м. с гардеробна, собствена баня и тераса.🏡 Характеристики:Монолитна стоманобетонна конструкцияВисочина на таваните до 3.40 мPVC дограма REHAU с троен стъклопакетФасада с естествен камък травертин12 см топлоизолация и силикат-силиконова мазилкаПодготовка за термопомпа, подово отопление, соларни панели и камина3-фазен токПодготовка за видеонаблюдение и автоматична поливна системаИзградени огради, алеи и фасадно осветлениеКъщите се издават по БДС, с напълно завършен екстериор и дворни пространства.✨ Основни предимства: ✔ Гъвкаво разпределение на три нива ✔ Възможност за отделно жилище на първото ниво ✔ Просторни и светли помещения ✔ Двор и паркоместа за два автомобила ✔ Тиха и зелена локация близо до градаИдеален имот за семейно жилище с простор и спокойствие в близост до Варна.За оглед позвънете на посочения телефон и цитирайте код: 381304
1 / 8



















Къща, Галата, Варна
€400,000 / 782,332 лв.
(€1,444 / 2,824 лв. / кв.м)
Характеристики
квадратура
година на строеж
Особености на имота
- Просторно жилище
- Популярен квартал
- Затворен комплекс
Описание
Прочети още
Училища и детски градини
Детски градини
Начални
Основни
Средни
Име
Адрес
Ясла
Разстояние
Детска Градина № 47 "Люляче" (С Яслена Група)
с ясла
846м.
Ипотечен кредитен калкулатор
Варна Галата Къща
Зареждаме...
