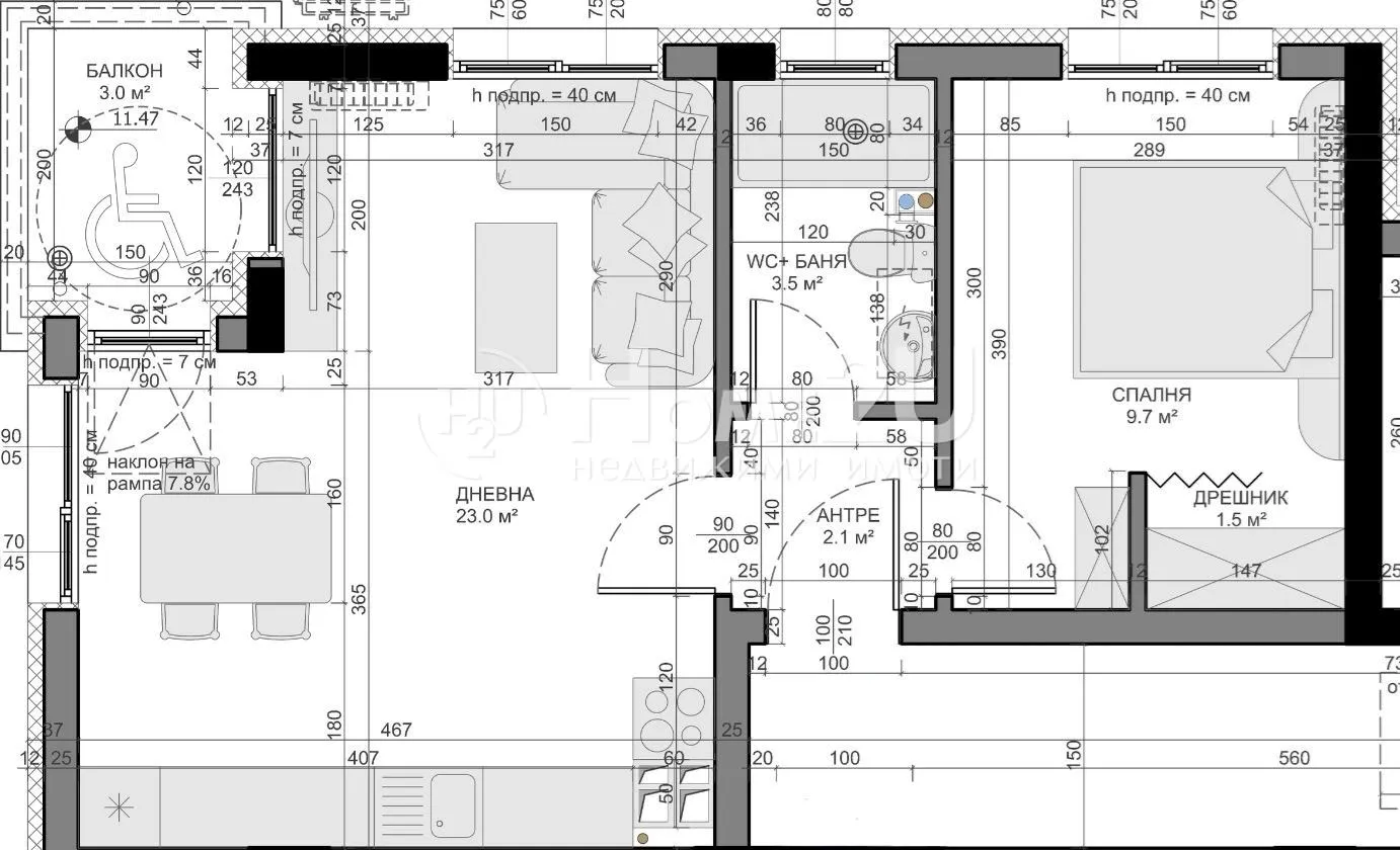
РАЗРЕШЕНИЕ НА СТРОЕЖ!!! НОВА СГРАДА!!! 2-СТАЕН!!! Предлагаме за продажба двустаен апартамент в новострояща се жилищна сграда, разположена на удобно и комуникативно място в кв. Владиславово.Жилището е с югозападно изложение и се отличава с функционално разпределение и правилни форми на помещенията:Дневна с кухненски бок, голяма спалня, баня с тоалетна, складово помещение в апартаментаСградата се изпълнява с висококачествени материали, модерна визия и е в непосредствена близост до училища, детски градини, магазини Jumbo и Kaufland, както и спирки на градски транспорт.Имотът е подходящ както за собствено ползване, така и за инвестиция.За повече информация и оглед, като цитирате този код - 137146!

Вход
Или
Все още нямаш профил?
Създай профил
1 / 4











2-стаен, Владислав Варненчик, Варна
€79,990 / 156,447 лв.
(€1,290 / 2,523 лв. / кв.м)
Характеристики
квадратура
брой стаи
година на строеж
етаж
Особености на имота
- Южно изложение
- Детски градини
Описание
Прочети още
Наблизо има
В непосредствена близост се намират:
Аптека
307м
Паркинг
961м
Кафене
966м
Училища и детски градини
Детски градини
Начални
Основни
Средни
Име
Адрес
Ясла
Разстояние
Детска Градина №38 "Маргаритка" (С Яслена Група)
с ясла
300м.
Ипотечен кредитен калкулатор
Варна Владислав Варненчик Двустаен апартамент