Unique Estates има удоволствието да представи мезонет с три спални за продажба в новострояща се бутикова жилищна сграда, разположена в един от най-предпочитаните и динамично развиващи се райони на южна София - кв. Манастирски ливади - изток, район Триадица.
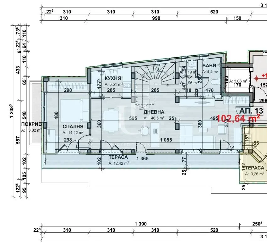
Апартаментът е проектиран на два етажа с добре обмислено функционално разпределение, което създава усещане за простор, светлина и комфорт. Първото ниво на жилището е на пети етаж и оформя основната дневна зона. Тук е предвидено широко и светло пространство, в което естествено се обединяват дневна, трапезария и обособена кухня, създавайки приятна среда както за ежедневието, така и за приемане на гости. На същото ниво се разполагат спалня, баня с тоалетна, мокро помещение и входно антре, което осигурява удобство и функционалност на жилището. Голямата тераса осигурява слънчева гледка на юг.
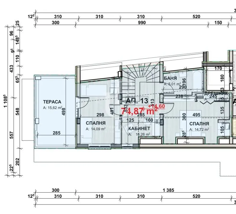
Второто ниво се намира на шести етаж и предлага допълнително пространство, което е оформено като още две спални, баня и тоалетна, кабинет или зона за отдих според нуждите и предпочитанията на бъдещите собственици. Терасата с гледка на запад, осигурява гледка към романтични залези. Двуетажната организация на жилището позволява ясно разграничаване на дневната и по-интимната част на дома, като същевременно създава усещане за простор и спокойствие.
Сградата е ситуирана на спокойна и комуникативна локация, граничеща с ул. "Васил Стефанов", с бърз и удобен достъп до бул. България и Околовръстен път, което осигурява лесна връзка както с централните части на града, така и с основните изходни артерии на София. В непосредствена близост се намират Mall Bulgaria, множество магазини, ресторанти, супермаркети, училища, детски градини и разнообразни услуги, които осигуряват комфортен и модерен начин на живот.
Проектът се отличава със съвременна архитектура, висококачествени материали и внимание към детайла, като предлага комфортна и модерна жилищна среда.
Очакван Акт 15 - есен 2026 г.
Към имота има възможност за закупуване на надземно паркомясто на отделна цена от 20 452 евро без ДДС.
За удобство на бъдещите собственици е предвидена и възможност за извършване на довършителни работи по апартаментите.
Разпределение:
Имотът е двуетажен с обща площ от 201.08 кв.м.
Първо ниво - етаж 5 (кота +11.68 м): застроена площ 102.64 кв.м. и общи части 23.54 кв.м., разпределени в дневна 46.5 кв.м., спалня 14.42 кв.м., кухня 5.51 кв.м., баня с тоалетна и мокро помещение, както и тераса 12.42 кв.м.
Второ ниво - етаж 6 (кота +14.60 м) - застроена площ 74.90 кв.м., включва две спални 14.72 кв.м. и 14.09 кв.м., кабинет 16.26 кв.м., баня с тоалетна и тераса 15.62 кв.м.
Предимства:
- Добра локация в съвременен квартал
- Нова модерна сграда
- Качествено строителство
Цената е без включен ДДС (Ref. ID:29047)





