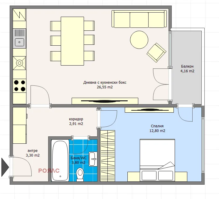
Оферта 37 809 Роялс има удоволствие да Ви представи за продажба двустаен дом, в нова луксозна бутикова сграда в София, зона Б18, централен район на 3 километра от жълтите павета и Народното събрание. На метри от метро станция и автобусни спирки. Разпределение на апартамента: коридор, голяма, просторна и светла дневна с кухненски бокс, спалня, баня и тоалетна в едно, тераса пред дневната . Отличен семеен дом.Възможност за парко място или гараж, които допълнително се заплащат. Този луксозен апартамент е идеален за всички, които търсят качество и комфорт в съвременен стил. Новото строителство гарантира високо ниво на енергийна ефективност и съвременни инженерни решения, които ще осигурят вашето удобство и спокойствие. Елегантните и стилни интериорни решения създават усещане за топлота и уют, а просторните стаи и балкони предлагат впечатляващ изглед към града.Ако имате допълнителни въпроси или желаете да направим оглед, не се колебайте да се свържете с нас: +359 884 939484 .ROYALS ще бъде до вас през целия процес на сделката! Извършваме всички необходими технически и юридически проверки на имота, който сте избрали. Агенцията може да ви съдейства и за отпускане на банков кредит при преференциални условия!ROYALS Недвижими имоти - Чистота. Детайли. Съвършенство.За още предложения посетете нашия сайт: https://royals.bg/

Вход
Или
Все още нямаш профил?
Създай профил
1 / 1









2-стаен, Зона Б-19, София
€215,000 / 420,503 лв.
(€2,905 / 5,682 лв. / кв.м)
Характеристики
квадратура
брой стаи
година на строеж
етаж
Особености на имота
- С паркомясто
- С гараж
- Просторно жилище
- Популярен квартал
- Саниран блок
- Детски градини
- Желан имот
Описание
Прочети още
Наблизо има
В непосредствена близост се намират:
Бар
Thin Red Line524м
Банкомат
Unicredit Bulbank281м
Ресторант
Pizza Calabria311м
Аптека
530м
Паркинг
318м
Кафене
358м
Транспорт
Най-близки спирки на градски транспорт до адреса:
Метро
Автобусни линии
Трамвайни линии
3
11
10
8
3
11
10
8
3
11
10
8
Училища и детски градини
Детски градини
Начални
Основни
Средни
Име
Адрес
Ясла
Разстояние
Ипотечен кредитен калкулатор
София Зона Б-19 Двустаен апартамент
