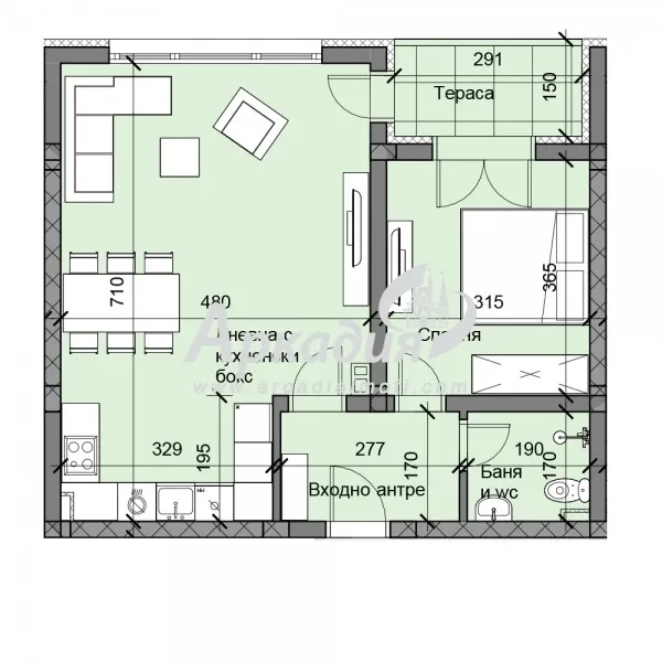
ОФЕЕРТА: 27964 - НОВО ИЗГОДНО ПРЕДЛОЖЕНИЕ!!!!ДВУСТАЕН АПАРТАМЕНТ в нова жилищна сграда пред АКТ-15, разположена в южната част на гр. Пловдив. Кооперацията е малка, само с 4 апартамента на етаж и предлага панорамна планинска гледка към Родопите.РАЗПРЕДЕЛЕНИЕ: голям светъл хол с трапезария и обособен кухненски бокс, спалня, баня с тоалетнa, входно антре и тераса.ЗАВЪРШВАНЕ: предлага се на шпакловка, замазка, ПВЦ-дограма, интериорни вътрешни врати, входна блиндирана.Има възможност за избор на паркомясто или гараж, който се продава към апартамента извън посочената цена.За удобството на живущите има изградени големи озеленени площи, места за отдих, както и удобна вътрешна пътна инфраструктура.За огледи: Атанас Копарански - 0879056451 Вижте още наши предложения www.arcadiaimoti.com Виж всички обяви в arcadia.bazar.bg или тук

Вход
Или
Все още нямаш профил?
Създай профил
1 / 1









2-стаен, Въстанически, Пловдив
€85,000 / 166,246 лв.
(€1,197 / 2,341 лв. / кв.м)
Характеристики
квадратура
брой стаи
година на строеж
етаж
Описание
Прочети още
Наблизо има
В непосредствена близост се намират:
Бар
Мафиозо458м
Банкомат
ЦКБ383м
Ресторант
Приятели244м
Аптека
423м
Паркинг
334м
Кафене
CAMEO395м
Училища и детски градини
Детски градини
Начални
Основни
Средни
Няма намерени детски градини
Ипотечен кредитен калкулатор
Пловдив Въстанически Двустаен апартамент
