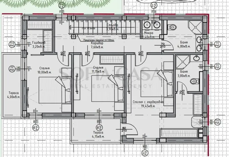
SOFIA CASA продава ексклузивно новопостроена двуетажна къща в село Гара Елин Пелин.Уют, светлина и простор - нов дом с дух и сърце. Представете си утрото- слънчеви лъчи проникват през големите прозорци, аромат на кафе се носи из просторната дневна, а отворената врата към двора ви кани да излезете боси върху росната трева. Това не е просто къща- това е дом, създаден с мисъл за спокойствие, свобода и топлина. Къщата е с РЗП: 170м2, като се състои от: - Първи етаж - всекидневна с кухненски бокс и трапезария, тоалетна, склад, антре. - Втори етаж - Три спални, едната от които е със собствена баня с тоалетна и дрешник, обща баня с тоалетна за другите две стаи, гардеробна, мокро помещение, коридор и две тераси. Сградата е на АКТ 15 Построена е с вискокачествени материали, гарантиращи дълготрайност и енергийна ефективност, домът ви предлага не само красота, но и сигурност. - Конструкция - монолитна, термоизолация от най- ново поколение. - Фасада - стилно изпълнение с устойчиви материали, които съчетават естетика и лесна поддръжка. -Дограма - висок клас PVC с троен стъклопакет за тишина и топлина. - Покрив- Керемиди Tondach. - Инсталация- къщата е с монтирано подово отопление. Дворът е с площ от 494 м2, е перфектното допълнение - ограден, равен, с пътеки, с място за барбекю, детски кът и др. В двора има обособени два входа за паркинг на вашите автомобили.Агенцията съдейства при нужда от ипотечно кредитиране при преференциални условия. Вземете оферти от водещите банки за по-малко от 30 минути.

Вход
Или
Все още нямаш профил?
Създай профил
1 / 3









Къща, Елин Пелин, Югозападна България
 €380,000 / 743,215 лв. 
 (€2,235 / 4,372 лв. / кв.м) 
Характеристики
квадратура
етаж
Описание
Прочети още
Училища и детски градини
Детски градини
Начални
Основни
Средни
Няма намерени детски градини