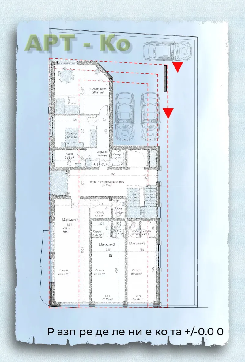
КОД 4068; Тристаен апартамент за продажба в новострояща се сграда в гр. Перник- Център. Цена с включен ДДС. Предлагаме за продажба жилище в новоизграждаща се сграда, разположена в централната част на гр. Перник. Сградата е проектирана съобразно най-съвременните изисквания за комфорт, функционалност и качество на материалите, като гарантира висок стандарт на обитаване и естетика. Апартаментът е партерен със РЗП 103,24 м2. Чиста площ от 84,83 м2, разпределени както следва: кухня-трапезария- дневна и килер в отворен план, две спални и баня със санитарен възел. Локацията е отлична -в близост до СОУ и ОДЗ, както и до вече обитаеми нови сгради. Възможна е покупка на ПМ външно, покрито или в подземен паркинг. Строителството е гарантирано от доказан във времето строител и инвеститор, както за Перник, така и за различни курортни центрове в страната.Контакт: Красимира Динкова - 0898471253

Вход
Или
Все още нямаш профил?
Създай профил
1 / 7

















3-стаен, Перник, Югозападна България
€170,000 / 332,491 лв.
(€1,635 / 3,197 лв. / кв.м)
Характеристики
квадратура
брой стаи
етаж
Описание
Прочети още
Училища и детски градини
Детски градини
Начални
Основни
Средни
Няма намерени детски градини
