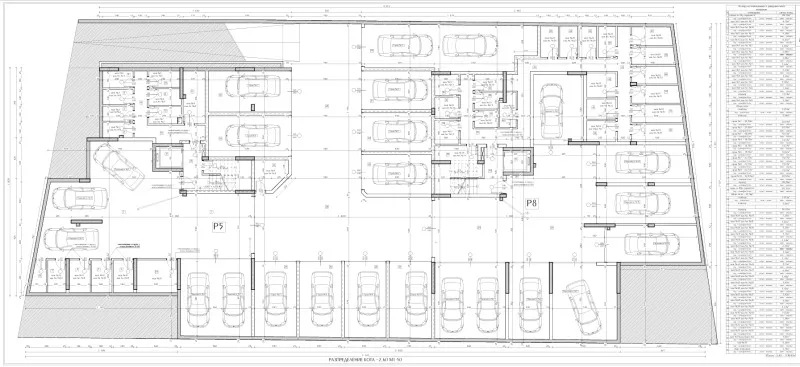
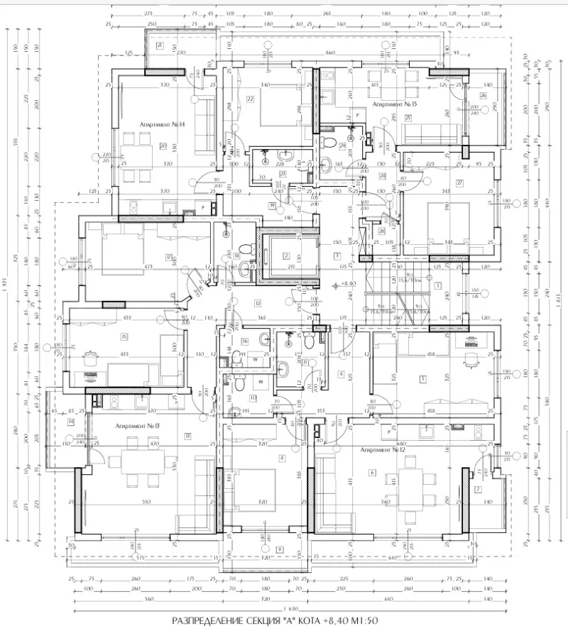
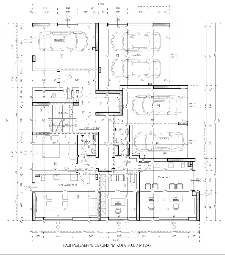
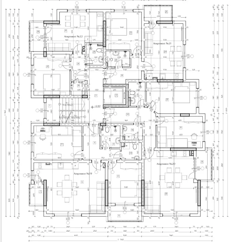
🔥НОВ ПРОЕКТ!!!⚠️Агенция за недвижими имоти ХОУМ ФОР Ю , Ви представя най новия ни проект:🔝2 луксозни жилищни сгради в затворен комплекс.🏢Сградите се състоят от: 2 модерни безшумни асансьора, сутерени с гаражи и мазета, партерни етажи с офис, гаражи и апартаменти и четири жилищни етажа.🔥Предимства и характеристики на сградите:✅Зидария с Wienerberger-Porotherm 25 light ;✅6 камерна ПВЦ дограма с високоенергиен двоен стъклопакет 4 сезона и К-а стъкло за запазване на температурата в помещенията;✅Топлоизолационна система MAPEI EPS (експандиpан полистирен) 10 см. и полимерна мазилка;✅Луксозни общи части с гранит и иноксови парапети;✅Стени и тавани: фина гипсова мазилка на MAPEI ;✅Блиндирани входни врати;✅Изводи за климатици във всяка стая;✅Стъклени парапети на терасите;✅Под: циментова замаска;✅Ел. до точка;✅ВиК до тапа;📍Локация: Сградите се намират в кв. Освобождение, гр. Благоевград.✅Лесна и бърза транспортна локация към София и Кулата;✅На 250 м. от спирката на градския транспорт за линия 7;✅На 650 м. от Югозападен университет Неофит Рилски - ЮЗУ;✅На 650 м. от магазин БГ-МАРКЕТ ;✅На 950 м. от Болница ПУЛС ;✅На 950 м. от Езикова Гимназия Академик Людмил Стоянов - ЕГ;✅На 950 м. от Математическа Гимназия Академик Сергей Корольов - МГ;❌Имоти за продажба в сградите:✅офис с площ 58,26 м2 на цена от 49 521 евро с ДДС;✅двустайни апартаменти с площ от 52,28 м2 до 77,83 м2 на цени от 44 438 евро до 66 156 евро с ДДС;✅тристайни апартаменти с площ от 95,01 м2 до 103,88 м2 на цени от 80 750 евро до 88 298 евро с ДДС;✅гаражи на КОТА +/- 0.00 м. с площ от 18,77 м2 до 44,64 м2 на цени от 11 262 евро до 26 784 евро с ДДС;✅подземни гаражи с площ от 22,45 м2 до 57,65 м2 на цени от 13 470 евро до 34 590 евро с ДДС;✅подземни парко места на цени от 10 000 евро с ДДС;✅външни парко места на цени от 6 000 евро с ДДС;🔥ГЪВКАВА СХЕМА НА ПЛАЩАНЕ:✅30 % - първоначална вноска✅10 % - на КОТА +/- 0.00 м.✅10 % - на КОТА + 2.80 м.✅10 % - на КОТА + 5.60 м.✅10 % - на КОТА + 8.40 м.✅10 % - на КОТА + 11.20 м.✅10 % - на АКТ 15✅10 % - на АКТ 16🏗Етап на строителство: В СТРОЕЖ!!!📄Акт 14 - декември 2025г.📄Акт 15 - август 2026г.📄Акт 16 - декември 2026г.🏠Новият Ви ДОМ е точно тук!РЕФЕРЕНТЕН6 Z-6570

Вход
Или
Все още нямаш профил?
Създай профил
Тази обява е свалена от сайта
Виж други обяви на агенцията
1 / 17





































2-стаен, Струмско, Благоевград
Характеристики
квадратура
брой стаи
година на строеж
Особености на имота
- Южно изложение
- Популярен квартал
- Затворен комплекс
- С гараж
- Детски градини
Описание
Прочети още
Наблизо има
В непосредствена близост се намират:
Ресторант
Бар 7785м
Училища и детски градини
Детски градини
Начални
Основни
Средни
Име
Адрес
Ясла
Разстояние
Продава се от: Хоум Фор Ю 
Още имоти от същата агенция

Благоевград Струмско Двустаен апартамент