Unique Estates има удоволствието да Ви представи самостоярелна къща за продажба, разположена в модерен затворен жилищен комплекс разположен в местността „Детски град" в Панчарево – една от най-предпочитаните крайградски локации в близост до София. Проектът заема терен от приблизително 4700 кв.м и включва 13 внимателно проектирани еднофамилни къщи – 6 свободностоящи и 7 редови, обединени в хармонично и естетически завършено пространство, а Зелените площи заемат над 70% от терена. Къщата е с обща площ от 198кв.м., разпределена на две нива.
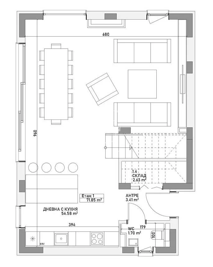
Първият етаж предлага просторна дневна с 3-метрови френски прозорци, осигуряващи обилна светлина и директен достъп до веранда и двор.
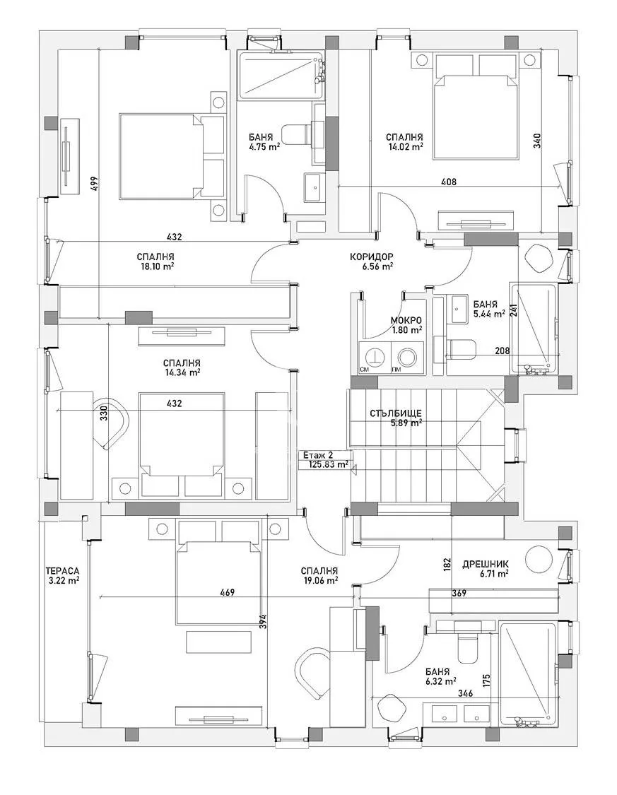
Вторият етаж включва четири спални, дрешник и на това ниво всички прозоречни системи са тип „френски прозорци“, които обхващат пространството от пода до тавана.
Разпределение:
На първо надземно ниво със светла височина 2,94 м от готов под до окачен таван (строителна височина 3.20 м от плоча до плоча) са разположени антре, просторен дневен тракт с кухня, трапезария и дневна, складово помещение и санитарен възел
На второ ниво височината между котата на готовия под окачен таван е 2,70 м (строителна височина 2,90 м от плоча до плоча) и са разположени 4 спални, дрешник, сервизно помещение, тераса и 3 отделни бани със санитарен възел.
Предимства:
- Лесен и бърз достъп до града и "Околовръстен път"
- Над 70% озеленени площи
- 3-метрови френски прозорци
- Отопление на газ
- Двор 370 квм
- Две паркоместа
Цената е без включен ДДС (Ref. ID:29031)








