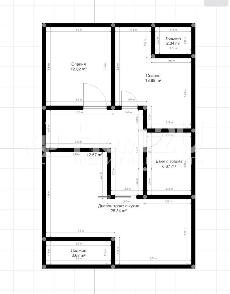
НОВ ТРИСТАЕН АПАРТАМЕНТ!!! ТУХЛА!!! ДО КЛЮЧ !!! Апартамент ново строителство, в района на Колхозния пазар, широк център. Намира се на втори жилищен етаж, среден, без външни стени и отстъпи – топъл и уютен, с южно и северозападно изложение. 84 кв.м – дневна с кухня и трапезария, две спални, баня с тоалет, голям коридор, две тераси и лоджия. Жилището е до ключ – с монтирана кухня, интериорни врати, напълно оборудвана баня, 3 климатика с Wi-Fi управление, висококачествени настилки и дограма Rehau.Сградата е с луксозни общи части и контролиран достъп.За улеснение прилагаме схема на разпределение. За повече информация и огледи може да цитирате следният код: 133406

Вход
Или
Все още нямаш профил?
Създай профил
1 / 10























3-стаен, Христо Ботев, Варна
€210,000 / 410,724 лв.
(€2,500 / 4,890 лв. / кв.м)
Характеристики
квадратура
брой стаи
година на строеж
етаж
Особености на имота
- Детски градини
Описание
Прочети още
Наблизо има
В непосредствена близост се намират:
Бар
526м
Банкомат
573м
Ресторант
Terra709м
Аптека
200м
Паркинг
25м
Кафене
Бай Бисер – Кракра569м
Училища и детски градини
Детски градини
Начални
Основни
Средни
Име
Адрес
Ясла
Разстояние
Ипотечен кредитен калкулатор
Варна Христо Ботев Тристаен апартамент
