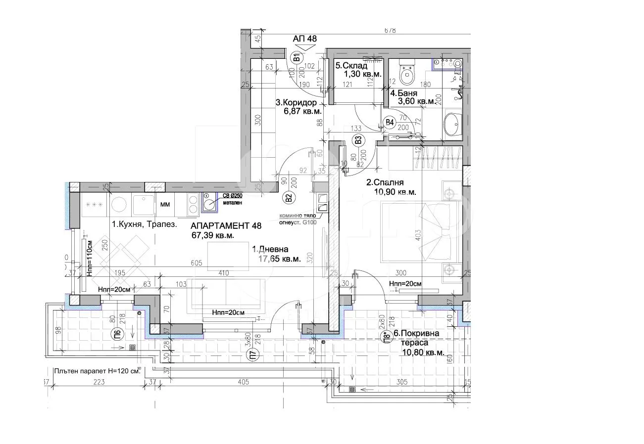
3mo Амалтея има удоволствието да Ви предложи южен двустаен апартамент в новострояща се модерна сграда пред Aкт 15 в ж.к. „Люлин“ 5 в столицата. Планиран Акт 16 в началото на 2026-та година. Предложеният имот с обща площ от 77,28 кв.м. (застроена 67,39 кв.м.) и се състои от: коридор (6,87 кв.м.), всекидневна с кухненски бокс и трапезария (17,65 кв.м.) с излаз на тераса (10,80 кв.м.), спалня (11 кв.м.), складово помещение (1,30 кв.м.) и санитарно помещение (3,60 кв.м). Жилището е разположено на девети от общо девет етажа с изложение юг и запад. Продава се в степен на завършеност по БДС с монтирана входна врата, поставена дограма, изградена домофонна инсталация и интернет окабеляване. Има опция за индивидуална оферта от инвеститора за довършителни работи и обзавеждане. Сградата разполага с подземни гаражи и надземни паркоместа, които могат да се закупят отделно. Възможни са различни схеми на плащане. В проекта са вложени висок клас материали с модерно изпълнение на общите части и елегантна фасада. Инвеститорът е с дългогодишен опит в строителството. В близост до имота са разположени множество и най-различни търговски, хранителни и денонощни магазини и обекти. Също така детска градина, училище и спирки на градски транспорт с бърз превоз до метростанции Люлин, Западен парк и Сливница. Връзката с централната и други части на столицата се осъществява посредством бул. Добринова скала , бул. Райко Даскалов, бул. Петър Дертлиев и Околовръстен път.
Оферта № Z-750
3mo Амалтея, заедно с лицензирания в БНБ кредитен посредник КРЕДИТ НАВИГАТОР, предоставят на своите клиенти възможност да изберат най-изгодния ипотечен кредит при закупуване на своето жилище. Услугата е БЕЗПЛАТНА.
1 / 9





















2-стаен, Люлин 3, София
€117,500 / 229,810 лв.
(€1,526 / 2,985 лв. / кв.м)
Характеристики
квадратура
брой стаи
година на строеж
етаж
Вид строителство
Особености на имота
- Саниран блок
- С гараж
- С паркомясто
- Желан имот
- Последен етаж
- Асансьор
- В строеж
Описание
Прочети още
Ипотечен кредитен калкулатор
София Люлин 3 Двустаен апартамент
Зареждаме...
