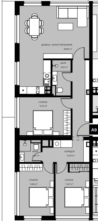
Многофамилната жилищна сграда е проектирана на девет надземни нива и две подземни нива. На партерно ниво са обособени два магазина и жилище за хора с увреждания, а на първия етаж са разположени четири офиса и три двустайни апартамента. За самостоятелните обекти, предвидени за обществено – обслужващи дейности, е осигурен самостоятелен достъп. На втория етаж са проектирани пет двустайни и един четиристаен апартамент. На всички типови етажи са обособени по четири двустайни и три тристайни апартамента. На последния етаж са проектирани две четиристайни жилища. В повечето жилища са предвидени складови помещения. Осигурени са допълнителни складове в двете подземни нива за апартаментите, които нямат складове в тях. Осигурени са общо 69 броя паркоместа – 62 бр. в подземния гараж /57 гаража и 5 паркоместа/ и 7 броя открити паркоместа /две от които са двойни/ с директен достъп от улицата. В първи сутерен са разположени 30 паркоместа, а във втори сутерен – 32. Транспортно – комуникационния достъп до първият подземен гараж е осигурен посредством покрита рампа с максимален наклон от 15%. Връзката между двата сутерена се осъществява посредством две рампи с наклон 13%. За пешеходен достъп и евакуация са предвидени четири разсредоточени изхода на всеки подземен етаж. Заложени са18бр. велосипедни паркоместа. Паркингът ще бъде изпълнен с настилка от шлайфан бетон и стени от видим бетон, с допънителни архитектурни решения и пътна сигнализация и осветление, които ще гарантират безпроблемното функциониране на зоните за паркиране.

Вход
Или
Все още нямаш профил?
Създай профил
1 / 5













Многостаен, Кръстова вада, София
Цена по запитване
Характеристики
квадратура
брой стаи
етаж
Особености на имота
- С паркомясто
- Видео наблюдение
- Контрол на достьпа
- С гараж
- Охраняван имот
- В строеж
Описание
Прочети още
Наблизо има
В непосредствена близост се намират:
Училища и детски градини
Детски градини
Начални
Основни
Средни
Няма намерени детски градини
Описание на проекта

Черни връх 113-115
Булевард Черни връх 113, 1407 София, България
София Кръстова вада Многостаен апартамент