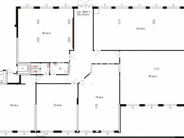
Търговско помещение - Магазин. Имотът се намира на изключително комуникативно място. Подходящо е за всякакъв вид търговска дейност. Възможност за покупка на ПМ. Цената е с ДДС. Издаване по БДС стандарт - на шпакловка и замазка. РАЗСРОЧЕНО ПЛАЩАНЕ и ВЪЗМОЖНОСТ ЗА ПОКУПКА НА ЗАКРИТО ИЛИ ОТКРИТО ПАРКОМЯСТО Оптимални разпределения и правилни форми на стаите. Отлични изложения. Лесен достъп до сградата. В близост са хипермаркети, училище "Стоян Михайловски, детска градина, автобусна спирка, институции и новоизграждащия се Мол. Новострояща се модерна сграда със зелени площи и детски кът в терен от 5,5 декара. Сградата се състои от три входа с 10 жилищни етажа и 1 с търговски обекти и покрит паркинг. Ще има и обслужващ паркинг на едно подземно ниво. На разположение на всеки етаж ще има по два високоскоростни асансьора с модерни кабини. Обекта ще се изпълня с модерна визия, архитектура и прецизно изпълнение с най-висок клас строителни материали, гарантиращи дълготрайност и енергийна ефективност. Инвеститорът е с над 20 годишен опит в строителството. - Гъвкави схеми на разсрочено плащане - Промоционални условия за кредитиране от водещи банки - Висококачествено строителство и прецизно изпълнение Обади се сега и цитирай този код Z-675059

Вход
Или
Все още нямаш профил?
Създай профил
1 / 8



















Магазин, Боклук Тарла, Варна
€1,263,000 / 2,470,213 лв.
(€1,998 / 3,908 лв. / кв.м)
Характеристики
квадратура
година на строеж
Описание
Прочети още
Наблизо има
В непосредствена близост се намират:
Банкомат
650м
Паркинг
759м
Кафене
661м
Училища и детски градини
Детски градини
Начални
Основни
Средни
Няма намерени детски градини
Ипотечен кредитен калкулатор
Варна Боклук Тарла Магазин
