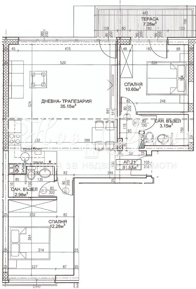
🏡 ** Дневна 33 м2! След АКТ 14! Френски прозорци! ! Панорама!**Референтен № Z-80183✨ **Дата на построяване:** 2025 г.📐 **Обща площ:** 95 кв.м**Основни характеристики на имота:**- 🛋️ **Брой стаи:** 3- 🛏️ **Брой спални:** 2- 🚪 **Брой балкони:** 1- 🛁 **Брой бани с тоалетни:** 2- 🚗 **Опция за паркомясто** - за улеснение и сигурност на Вашия автомобил!- 🛗 **Асансьор** - гарант за удобство и мигновен достъп до Вашия уютен дом.**Детайли за интериора:**- 🏞️ **Дневна:** 33 кв.м с френски прозорци, които предлагат изобилие от естествена светлина и простор, без скосявания. Идеално място за релакс и събирания със семейството и приятели.**Квартал Обеля 2:**Опция подземно паркомясто за 24000€.Обеля 2 е изключително привлекателен квартал. Кварталът разполага с отлична инфраструктура, включително училища, детски градини и медицински центрове, което го прави перфектно място за живот.Това е Вашият шанс да се сдобиете с модерен и комфортен апартамент в един от най-добрите квартали на София! Не пропускайте възможността да направите този апартамент Вашия нов дом! 🏠„НОВ ДОМ 1“ : Компанията разполага с : „Юридически Отдел“- извършващ всички необходими юридически и технически проверки на имота, организира всички етапи на сделката до нейното финализиране с нотариално прехвърляне на имота. „Кредитен Отдел“ - съдействащ за отпускане на банков кредит при възможно най-добри условия за клиента, като избора на банка се определя спрямо нуждите и възможностите на клиента. „Строително-Ремонтен Отдел“ - гарантиращ при нужда цялостен ремонт на вашето жилище до ключ при най-изгодни условия и цени.„Консултант Недвижими Имоти „: Петър Христов – 0888925556
1 / 16



































3-стаен, Обеля, София
€199,500 / 390,188 лв.
(€2,100 / 4,107 лв. / кв.м)
Характеристики
квадратура
брой стаи
година на строеж
етаж
Вид строителство
Описание
Прочети още
Ипотечен кредитен калкулатор
София Обеля Тристаен апартамент
Зареждаме...
