Нови бутикови сгради в строеж в м-т Св. Никола, Варна – изцяло южно ориентирани с безкрайна морска панорама
Представяме Ви уникален проект от три малки, модерни сгради, разположени в една от най-престижните и тихи зони на Варна – местност Св. Никола.
Комплексът е проектиран така, че всяко жилище да се радва на пряка, открита морска гледка.
Сградите са разположени в тиха, зелена среда сред много големи красиви къщи. Достъпа е лесен от няколко основни пътни артерии.
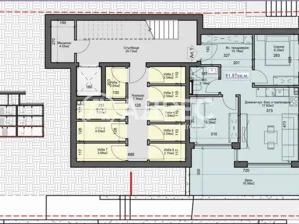
Три сгради с фронтална гледка море. Сградите ще бъдат изпълнени с висококачествени материали като за грубия строеж , така и за довършителните дейности.
-
Изцяло южно изложение – максимална светлина и топлина през целия ден
-
Безкрайна панорама към морето
-
Три бутикови сгради с нискоетажно строителство и ограничен брой апартаменти
-
Спокойна и зелена среда, съчетана с удобен достъп до центъра и морската градина
-
Съвременна архитектура, висококачествени материали и функционални разпределения
Идеален избор за хора, търсещи комфорт, престиж и ежедневие, изпълнено със светлина и море.
Обади се сега и цитирай този код Z-677052





