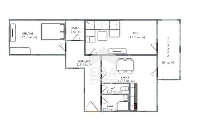
Предлагаме Ви за продажба двустаен апартамент в панелна сграда, в централната част на града, в района на ЛК Тракия, в близост до площад Отец Паисий, гр. Варна. Апартаментът е разположен на 7-мия от общо 9 етажа в сградата. Застроената му площ е 73.08 кв. м. Към имота има прилежащо мазе с площ 5.24 кв. м. Разпределението е следното: дневна (17.2 кв. м) и кухня (17.5 кв. м), които имат излаз на общ балкон с площ от 9 кв. м, спалня с южно изложение (12.7 кв. м), три отделни сервизни помещения - баня (2.2 кв. м), тоалетна (1.5 кв. м) и килер (3 кв. м), Г-образен коридор с гардеробна ниша (16.2 кв. м).
Имотът е за основен ремонт.
Сградата е от 80-те г., с добре поддържани общи части и асансьор.
Районът е предпочитан за живеене. На пешеходно разстояние са ОУ Васил Априлов, ОУ Петко Р. Славейков и 3 ПМГ, ОУ Йордан Йовков, детски градини, Храм Св. Прокопий Варненски, медицински център, МакДрайв, пощенски клон, Районен съд, Медицински колеж, Стоматологичен факултет на Медицински университет, хипермаркет Лидл, Окръжна болница, множество удобни спирки на градския транспорт по бул. Сливница и бул. Владислав Варненчик - автобусни линии: 1, 148, 18/40, 22, 43.
Оферта 7100352
1 / 3









2-стаен, Тракия, Варна
€145,000 / 283,595 лв.
(€1,813 / 3,546 лв. / кв.м)
Характеристики
квадратура
брой стаи
година на строеж
етаж
Описание
Прочети още
Ипотечен кредитен калкулатор
Варна Тракия Двустаен апартамент
Зареждаме...
