20% ПЪРВОНАЧАЛНА ВНОСКА!! ОТЛИЧНА ЛОКАЦИЯ!! СРЕДЕН ЕТАЖ!! ВИСОКОКАЧЕСТВЕНО СТРОИТЕЛСТВО!!Home2U ви представя за продажба тристаен апартамент в нова сграда в кв. Кайсиева Градина! Сградата ще разполага с 4 асансьора, луксозни общи части от гранит, като при строителството ще се използват само висококачествени материали. На пешеходно разстояние от нея се намират: Хипермаркети, Детска Градина, Училища, както и спирка на градския транспорт. Има възможност за покупка и на паркомясто. За повече информация се обадете и цитирайте следния код: 130714

Вход


Или
Все още нямаш профил?
Създай профил
1 / 5













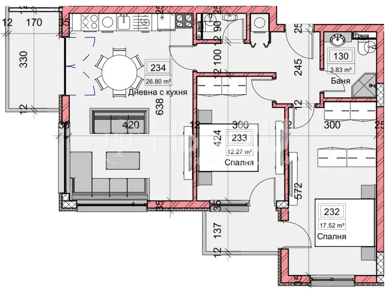
3-стаен, Кайсиева градина, Варна
€145,000 / 283,595 лв.
(€1,394 / 2,727 лв. / кв.м)
Характеристики
квадратура
брой стаи
година на строеж
етаж
Описание
Прочети още
Наблизо има
В непосредствена близост се намират:
Банкомат
631м
Паркинг
695м
Кафене
653м
Училища и детски градини
Детски градини
Начални
Основни
Средни
Няма намерени детски градини
Ипотечен кредитен калкулатор
Варна Кайсиева градина Тристаен апартамент