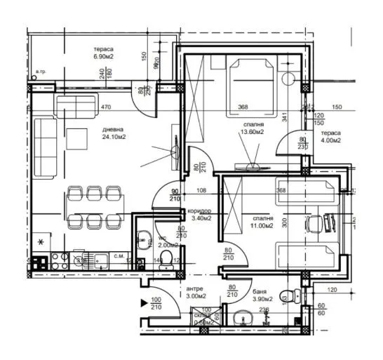
🙏 С всяка сделка ние от Diamond Home помагаме! 💎Даряваме процент от нашата комисионна на Фондация „Вярвай“ - организация, която подпомага хора, борещи се с рак.Вярваме, че заедно можем да направим нещо повече от просто бизнес - можем да дадем надежда. ❤️🏠 Diamond Home Ви представя тристаен апартамент в бутикова сграда, в един от най-предпочитаните квартали на Пловдив - кв. Беломорски!📐 Разпределение:Входно антре, коридор, дневна, две спални, баня с wc, wc, склад, две тераси.📍 Локация:В непосредствена близост до супермаркет, аптека, болница, кафенета и ресторанти, както и спирки на градски транспорт.🏗 Сградата:✔ Висококачествено строителство от утвърден инвеститор✔ Озеленена среда и осигурени паркоместа✔ Предлагат се и други двустайни и тристайни апартаменти💎Мисията ни е да създадем доверие във Вас, като Ви предоставяме най-високо качество на обслужване!💎Разполагаме с над 1000 имота!💎Услугите, които предлагаме:- Консултация от старши брокер- Съдействие с кредитен консултант относно финансирането Ви- Договаряне на възможно най-изгодни условия за Вас- Оформление на цялата документация по сделката- Агенцията работи с утвърден юрист в бранша- Управление на всякакъв вид имоти💎За информация или оглед относно този или друг имот не се колебайте и се свържете с нас!ОФЕРТА НОМЕР: 241915

Вход
Или
Все още нямаш профил?
Създай профил
1 / 2









3-стаен, Беломорски, Пловдив
€105,700 / 206,731 лв.
(€1,090 / 2,132 лв. / кв.м)
Характеристики
квадратура
брой стаи
година на строеж
Особености на имота
- Популярен квартал
Описание
Прочети още
Наблизо има
В непосредствена близост се намират:
Ресторант
Note Di Vino968м
Училища и детски градини
Детски градини
Начални
Основни
Средни
Име
Адрес
Ясла
Разстояние
Ипотечен кредитен калкулатор
Пловдив Беломорски Тристаен апартамент
