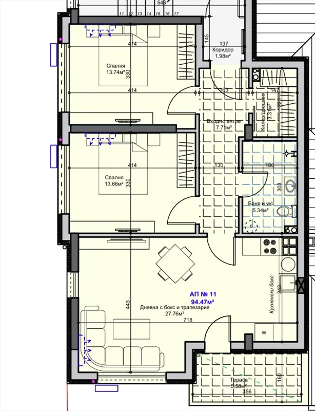
Facebook Pixel Апартамент в Стара Загора за 83,000€ - Zimoti
Logo