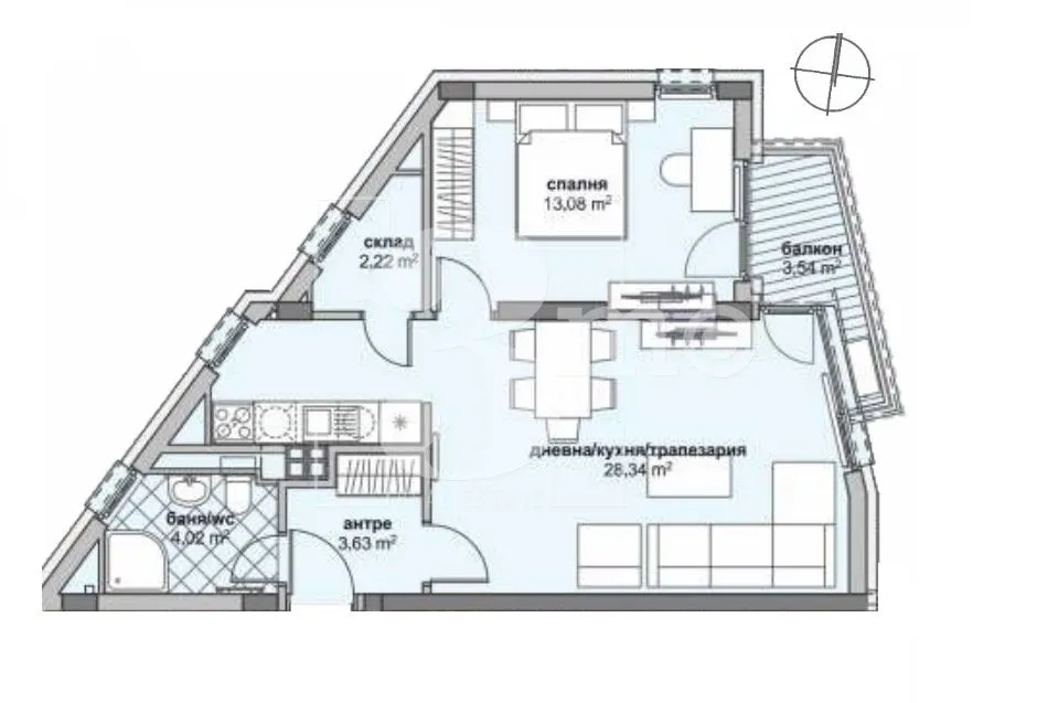
3mo Амалтея има удоволствието да продава двустаен апартамент в модерна жилищна сграда в ж.к. Люлин 6 с планирано разрешение за ползване през 2026-та година. Предложеният имот е с обща площ от 81,87 кв.м. (застроена 69,86 кв.м.) и се състои от: входно антре (3,65 кв.м.), всекидневна с кухненски бокс и трапезария (28,34 кв.м.) с излаз на балкон (3,54 кв.м.), спалня (13,08 кв.м.), складово помещение (2,22 кв.м.) и баня с тоалетна (4,02 кв.м.). Жилището е разположено на трети от общо девет етажа с изложение изток, запад и север. Апартамента се продава в степен за завършеност по БДС на цена 109705евро. Към имота може да се закупи паркомясто или гараж. Инвеститора е с дългогодишен опит в строителството с модерна визия и луксозно изпълнение на общите части в своите сгради. В близост до жилището са разположени множество и най-различни търговски, хранителни и денонощни магазини и обекти, детска градина, училища, спирка на градски транспорт с бърз превоз до входа на метростанция "Западен парк" и мега мол. Връзката с централната и други части на столицата се осъществява посредством бул. Петър Дертлиев и Околовръстен път. Агенцията ни предлага безплатна консултация и съдействие на своите клиенти при покупка на имот чрез ипотечен кредит. За повече информация и организиране на огледи, моля свържете се с нас на посочените телефони! Оферта № Z-450
1 / 2









2-стаен, Люлин 6, София
€109,705 / 214,564 лв.
(€1,338 / 2,617 лв. / кв.м)
Характеристики
квадратура
брой стаи
година на строеж
етаж
Вид строителство
Вид отопление
Особености на имота
- Саниран блок
- С гараж
- С паркомясто
- Желан имот
Описание
Прочети още
Ипотечен кредитен калкулатор
София Люлин 6 Двустаен апартамент
Зареждаме...
