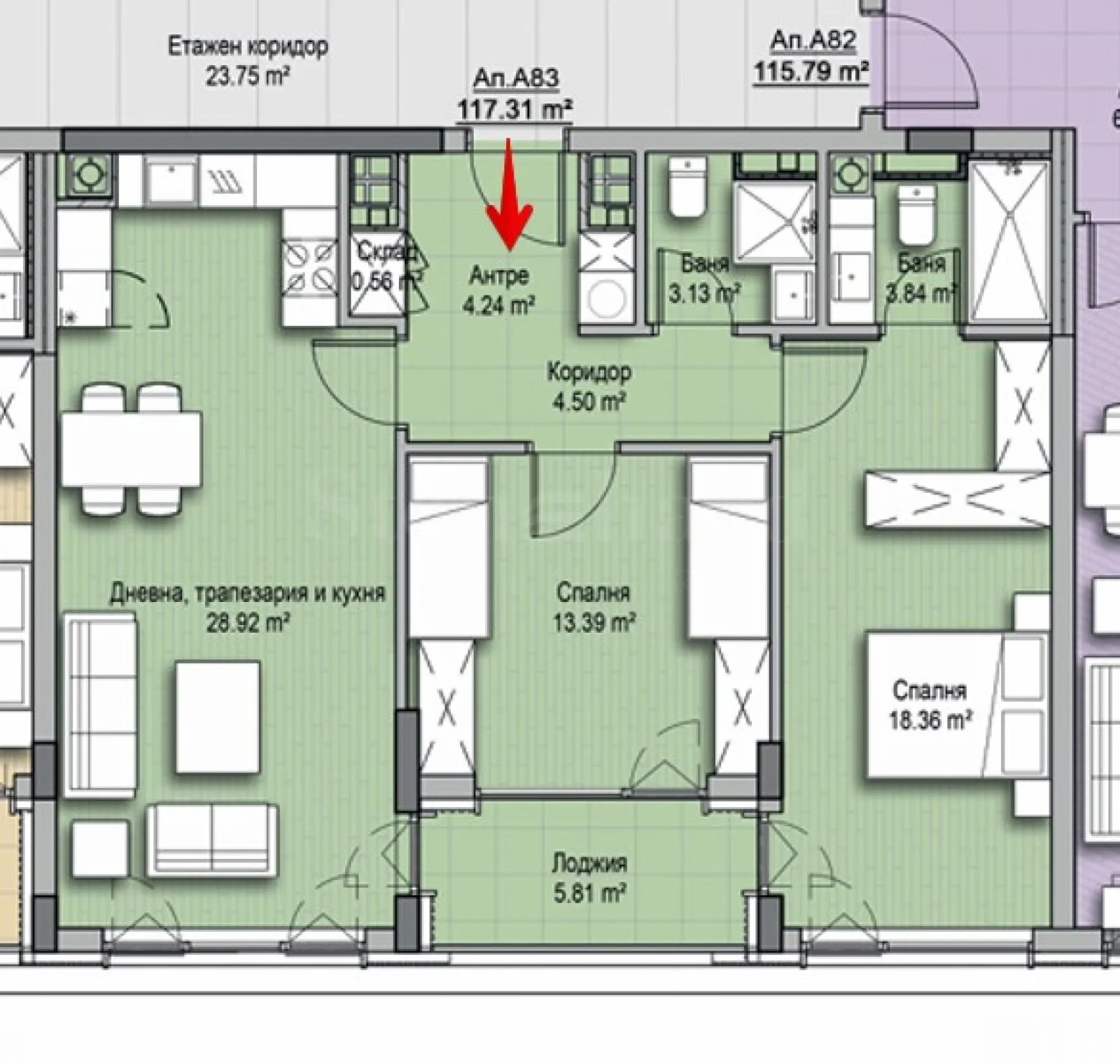
Референтен номер: Z-SOF-127464С разрешение за строеж! Планиран старт на строителството - януари 2025 г. Планирано завършване - в края на 2027 г.Представяме практично разпределен, комфортен тристаен апартамент от 117.31 кв.м за продажба, в нов, модерен и иновативен комплекс на топ локация в един от най-предпочитаните и динамично развиващи се райони на София - кв. 'Витоша'. Комплексът е стратегически позициониран, предоставяйки лесен достъп до центъра на града, като същевременно предлага уединение и комфорт благодарение на близостта си до Ловния парк, Зоопарка и планината Витоша. Намира се между булевардите 'Симеоновско шосе' и 'Филип Кутев', с бърз достъп до основните транспортни артерии на столицата. Районът предлага отлична инфраструктура с удобни автобусни връзки, детски градини и училища.Имотът е разположен на 8-и, последен етаж в Сграда 'А'. Предлага се в степен на завършеност по БДС.Разпределение: антре/коридор, склад, баня/тоалетна;дневна с кухня и трапезария;една спалня със собствена баня с тоалетна;втора спалня;тераса тип лоджия с излаз от всички стаи. ПРОМО СХЕМА НА ПЛАЩАНЕ:20% на Предварителен договор;80% на Акт 16. Цена без ДДС. Без комисиона от купувача!Комплексът разполага със 153 паркоместа и 12 гаража за автомобили в подземните нива. Предвидени са и зони с места за велосипеди.Има възможност за закупуването на паркоместа и гаражи, на цени от 34 000 без ДДС.Концепция и удобстваКомплексът се състои от две хармонично допълващи се сгради - 'А' (8 етажа) и 'Б' (18 етажа), обединени от обширно зелено пространство, и в симбиоза с атрактивната локация до парка ще предоставя на обитателите си и собствен двор с внимателно подбран ландшафт. Включени са иглолистни и широколистни ...Цената на имота е 330 000 евро / 645 423.90 лв. без ДДС или 396 000 евро / 774 508.68 лв. с ДДС. Данъчен кредит може да се ползва при определени условия.За повече информация свържете се с нас и цитирайте референтния номер на имота. Моля, кажете, че сте видeли обявата в този сайт.Референтен номер: SOF-127464Тел: +359 889 007 010Моб: +359 877 777 888 (WhatsApp, Viber, SMS)Отговорен брокер:Стоунхард ПРЕМИЪРБез комисиона от купувача

Вход
Или
Все още нямаш профил?
Създай профил
1 / 8



















3-стаен, Витоша, София
 €330,000 / 645,424 лв. 
 (€2,821 / 5,516 лв. / кв.м) 
Характеристики
квадратура
брой стаи
етаж
Описание
Прочети още
Наблизо има
В непосредствена близост се намират:
Банкомат
селенос 71923м
Аптека
902м
Кафене
955м
Училища и детски градини
Детски градини
Начални
Основни
Средни
Няма намерени детски градини
Ипотечен кредитен калкулатор
София Витоша Тристаен апартамент