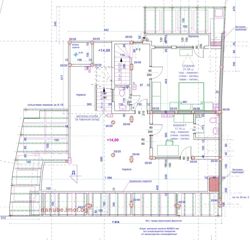
В строеж, 4 тераси, Юг-Запад, ПВЦ дограма, Необзаведен, Апартамент А1 в новострояща се сграда в Топ Център до Съда, енергоефективна, възможност за слънчеви панели, нисък процент общи части, Общи части: под - гранитогрес, стени и тавани - латекс; Помещения на БДС. Налични Гаражи с автоматична голяма врата Хьорман. ОТПУСКАНЕ НА ЗАЕМИ СРЕЩУ ЖИЛИЩЕ ИЛИ ЗЕМЕДЕЛСКА ЗЕМЯ И БЕЗ ОДОБРЕНИЕ ОТ БАНКА! GSM 0894/650-659 IDN:732084

Вход


Или
Все още нямаш профил?
Създай профил
1 / 7

















3-стаен, Център, Русе
€208,104 / 407,016 лв.
(€1,445 / 2,827 лв. / кв.м)
Характеристики
квадратура
брой стаи
година на строеж
етаж
Особености на имота
- Просторно жилище
- Популярен квартал
- С гараж
- Детски градини
- В близост до парк
Описание
Прочети още
Наблизо има
В непосредствена близост се намират:
Бар
Old Fashion384м
Банкомат
83м
Ресторант
Старата поща194м
Аптека
Марешки743м
Паркинг
221м
Кафене
Royal City Center274м
Училища и детски градини
Детски градини
Начални
Основни
Средни
Име
Адрес
Ясла
Разстояние
Ипотечен кредитен калкулатор
Русе Център Тристаен апартамент