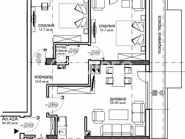
Тристаен апартамент разположен в нова жилищна сграда.
Разпределение: Просторна дневна зона с големи прозорци, които осигуряват много естествена светлина, две спални, баня с тоалетна, складово помещение, две тераси и антре.
Има възможност за закупуване на подземно паркомясто.
Изложение: ЮИ
В близост до училища, детски градини, болница "Надежда", метростанция "Овча купел", трамвайни линии 4,11 и 22, автобусни линии 11, 60 и 83.
Сграда, предлагаща функционално разпределение на апартаментите и само 10% общи части. Френски прозорци и светла височина на помещенията 2.65м.
Технически параметри: Конструкция: монолитна стоманобетонна
Външни и преградни стени: зидария висок клас енергоефективна керамична тухла, топлоизолация -10 см каменна вата;
Фасада: алуминиеви архитектурни детайли с меден цвят и висок клас немска минерална мазилка CAPAROL /или еквивалент/.
Дограма: 5-камерена PVC немска, с троен, подсилен шумоизолационен стъклопакет, слънцезащитно покритие - 4 сезона, флоат, ниско емисионно Ка стъкло, топъл дистанционер;
Входни врати: блиндирани, с касова брава, външна, пожароустойчива;
Стени и тавани: машинно-гипсова мазилка;
Завишена шумоизолация на преградните стени между отделните апартаменти;
Под: с допълнителна шумоизолация под плаваща замазка;
Балкони: първокачествен мразоустойчив гранитогрес, полиуретанова хидроизолация гравирани алуминиеви детайли.
Общи части: настилки – гранитогрес/гранит; стени и тавани – латекс;
Асансьори: от сертифициран вропейски прозводител - висок клас, просторни, с осигурен достъп на хора с увреждания;
ВиК инсталации: водопровод – изпълнен с полипропиленови, шумопоглъщащи тръби, до тапа;
Канализация – изпълнена със специализирани PVC тръби, до точка;
Ел.инсталация: изцяло изградена с монтирани прекъсвачи, ключове, контакти, монтирано апартаментно табло;
Слаботокови инсталации: изградено окабеляване за кабелна телевизия, интернет и звънчева и домофонна инсталация;
Отоплителна инсталация: изградена сградна газова инсталация; инсталирани изводи за монтаж на климатици и монтирана кутия за климатик;
Вертикална планировка: изградена, съгласно утвърден проект за паркоустройство и благоустройство с богато озеленяване;
Обезопасен подземен и надземен паркинг/гаражи, включително и за велосипеди.
Множество зарядни станции за електрически автомобили.
Автоматична пожароизвестяваща и пожарогасяща инстилация със собствен резервоар и помпена станция.
Вечнозелени растения и богато ФАСАДНО озеленяване.
Детска площадка.
Детска градина.
Схема на плащане:
Вариант I
(преференциална цена с отстъпка за начин на плащане)
40% от цената - при подписване на предварителен договор
15% от цената - на кота 0
10% от цената - при достигане на плоча
30 % от цената - Акт 14
5% от цената - Акт 16
Вариант II
(+ 6 % над цената по Вариант I)
35% от цената - при подписване на предварителен договор
60% от цената - Акт 14
5% от цената - Акт 16
Крайни цени с ДДС!
Очакван акт 16 в началото на 2027г
Обади се сега и цитирай този код Z-646739






