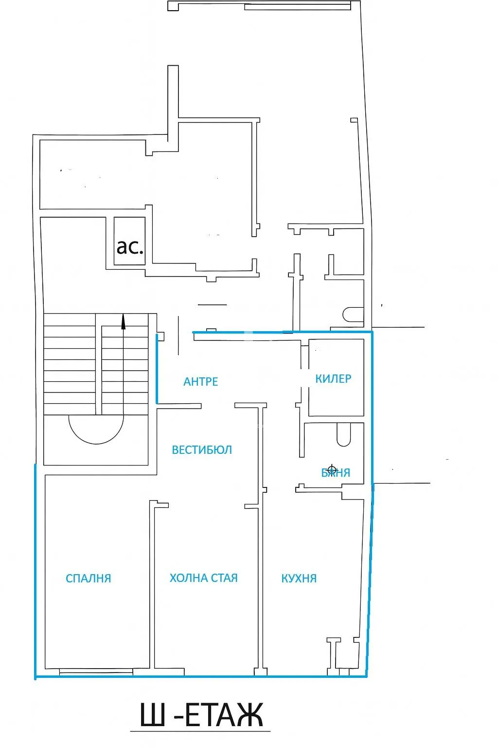
Unique Estates предлага за продажба градски апартамент в сърцето на София. В отсечка на бул. „Мария Луиза“, само на пет минути от метростанция „Сердика“, се разкрива апартамент, който съчетава очарованието на старата софийска архитектура и съвременния комфорт. Просторните 85 кв.м, източното изложение и високите тавани, създават усещане за светлина, лекота и дишащ градски уют. Разпределението е балансирано и интуитивно: приветливо антре, слънчева дневна, широка спалня и отделна кухня с трапезария и балкон към булеварда – място, където градът минава под вас, а вие оставате в собственото си спокойно пространство. Апартаментът е частично обновен, оставяйки на бъдещия обитател възможността да добави своя стил – да превърне това жилище в модерен дом, представително студио или бутиков Airbnb проект. Сградата от 50-те предлага масивност, тишина и поддържани общи части, а локацията гарантира всичко необходимо на една ръка разстояние. Това не е просто имот. Това е място с характер – за хора, които искат да живеят в ритъма на града, без да губят усещането за собствено, красиво пространство. Разпределение:Приветливо просторно антре, слънчева дневна, широка спалня и отделна кухня с трапезария и балкон към булеварда – място, където градът минава под вас, а вие оставате в собственото си спокойно пространство. В сградата има изградена шахта за асансьор, но не е монтиран такъв. Предимства:Отлична централна локацияУдобен транспортСветъл и просторен градски апартаментПредставителна сградаХипермаркети Kaufland и LidlДетски градини и училища (Ref. ID:28323)

Вход
Или
Все още нямаш профил?
Създай профил
1 / 16



































3-стаен, Център - Север, София
€284,500 / 556,434 лв.
(€3,348 / 6,548 лв. / кв.м)
Характеристики
квадратура
брой стаи
година на строеж
етаж
Особености на имота
- Детски градини
Описание
Прочети още
Наблизо има
В непосредствена близост се намират:
Бар
Салонъ103м
Банкомат
32м
Ресторант
Midpoint62м
Аптека
Ceiba40м
Паркинг
305м
Кафене
265м
Транспорт
Най-близки спирки на градски транспорт до адреса:
Метро
Автобусни линии
Трамвайни линии
1
12
18
27
Училища и детски градини
Детски градини
Начални
Основни
Средни
Име
Адрес
Ясла
Разстояние
Ипотечен кредитен калкулатор
София Център - Север Тристаен апартамент
