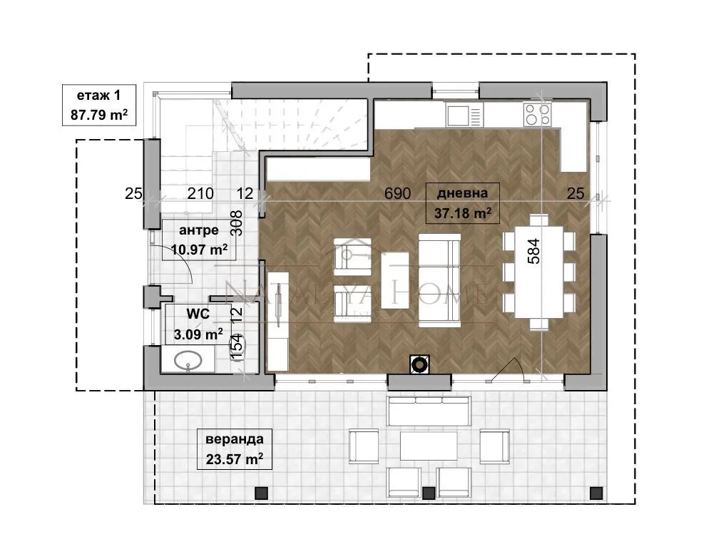
Представяме Ви нов проект в предстоящо строителство - малък и модерен жилищен комплекс, състоящ се от 7 самостоятелни къщи, разположени в тиха зона с удобен достъп в кв. Ветрен, гр. Бургас.Къща А3 е с разгъната застроена площ от 191,89 кв.м., самостоятелен двор с площ от 493,60 кв.м. и собствен басейн.Разпределение:-Първи етаж: входно антре, Просторна дневна с трапезария и кухненски бокс - 37 кв.м., баня/WC, излаз към веранда и двор;-Втори етаж: три самостоятелни спални, две бани/WC, дрешник, мокро помещение, Обща тераса с излаз от всички стаи.Покрив: плосък покрив с възможност за обособяване на просторна тераса - 90 кв.м. - подходяща за зона за релакс, джакузи, градина на покрива или лятна кухня.-Съвременно строителство с висок клас материали.-Отлична вътрешна функционалност и светли помещения.-Самостоятелни паркоместа към всяка къща.-Контролиран достъп до комплекса.Комплексът е проектиран с мисъл за комфорт, стил и спокойствие - идеалният дом за Вас и Вашето семейство!Директно от Инвестирора!За повече информация и огледи - свържете се с нас сега!

Вход


Или
Все още нямаш профил?
Създай профил
1 / 7

















Къща, Ветрен, Бургас
€350,000 / 684,541 лв.
(€1,823 / 3,565 лв. / кв.м)
Характеристики
квадратура
година на строеж
Описание
Прочети още
Училища и детски градини
Детски градини
Начални
Основни
Средни
Няма намерени детски градини
Ипотечен кредитен калкулатор
Бургас Ветрен Къща