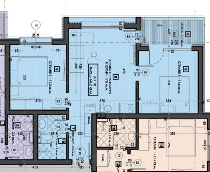
Референтен номер: Z-Велинград хоумс - PLV-126179Представяме тристаен апартамент в съвременния комплекс Velingrad homes /Велинград хоумс/ - новото усещане за дом! Страхотна локация на минути от центъра на Велинград и СПА зона, и едновременно с това с прекрасни гледки към града и гората. В много желан централен район в близост до минерални басейни, хотели, парк, болница, аптека, детска градина, училище, на 94 км от летище Пловдив и 136 км от летище София. Сградата е в процес на строителство, а Акт 16 е предвиден до декември 2026 г.БЕЗ КОМИСИОНА!Красивата фасада и луксозните общи части са емблематични за сградите на строителя. А разнообразието от жилища може да задоволи изискванията на всеки клиент. Закупуването на дом в този обект не би било просто решение на отегчени от забързания ритъм на големия град романтици. Това е прагматичен поглед на модерни хора с модерно отношение към природата и връзката си с нея, към здравословната простота и хармония в живота.Комплексът предлага едностайни, двустайни и тристайни жилища с добро разпределение и част от които разполагат с веранди, а останалите с тераси. Имотът с обща площ от 72.55 кв.м е разположен на 3-ти етаж от 6.В строителството са влага високо качество на изпълнение и индивидуален подход. Имотите се предават в степен на завършеност по БДС, но има възможност да бъдат завършени 'до ключ' от строителя или с материали на клиента. Технически характеристики:тухли четворка КЕБЕ - Гърция;блиндирани входни врати;стени и тавани гипсова мазилка;под циментова замазка; ел. инсталация без ключове и контакти;ВиК тръбни разводки на тапа;6-камерна цветна PVC дограма Hammer, 32 mm стъклопакет;напълно завършени тераси;асансьор;луксозни общи части - гранитогрес, камък, дърво, алуминий стъкло; контролиран достъп.Сградата разполага с открит паркинг, който осигурява паркоместа на 100%, но има възможност и за ...За повече информация свържете се с нас и цитирайте референтния номер на имота. Моля, кажете, че сте видeли обявата в този сайт.Референтен номер: Велинград хоумс - PLV-126179Тел: +359 889 007 010Моб: +359 877 777 888 (WhatsApp, Viber, SMS)Отговорен брокер:Стоунхард ПРЕМИЪРБез комисиона от купувача

Вход
Или
Все още нямаш профил?
Създай профил
1 / 7

















3-стаен, Велинград, Южна България
€79,801 / 156,077 лв.
(€1,108 / 2,168 лв. / кв.м)
Характеристики
квадратура
брой стаи
етаж
Описание
Прочети още
Училища и детски градини
Детски градини
Начални
Основни
Средни
Няма намерени детски градини