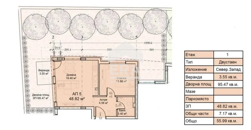
ЕРА Надежда продава един истински уютен и функционален двустаен апартамент в кв. Модерно предградие, разположен в нова сграда с вече издадено разрешение за строеж. Жилището е със застроена площ от 48,82 кв.м. и обща площ 55,99 кв.м., като към него принадлежи и прекрасно дворно пространство от 95,47 кв.м., което създава усещане за къща в града. Апартаментът е с изключително практично разпределение просторна дневна с кухненски бокс от 19,46 кв.м., уютна спалня с площ 11,86 кв.м., баня с тоалетна, антре и веранда от 3,55 кв.м., която плавно свързва вътрешното и външното пространство. Изложението е север-запад, което осигурява естествена светлина през целия ден и комфортна температура през летните месеци. Сградата ще бъде с модерна архитектура и висококачествено изпълнение, а районът предлага отлична инфраструктура и бърз достъп до центъра на София, както и близост до магазини, училища и градски транспорт. Това е идеален избор както за собствен дом, така и за инвестиция с висока възвращаемост, благодарение на комбинацията от практична квадратура, самостоятелно дворно място и отлична локация. Не пропускайте възможността да осигурите бъдещия си дом в една от най-бързоразвиващите се зони на столицата.
Оферта Z-3304537
1 / 2









2-стаен, Модерно предградие, София
€94,999 / 185,802 лв.
(€1,696 / 3,317 лв. / кв.м)
Характеристики
квадратура
брой стаи
Вид строителство
Особености на имота
- Асансьор
Описание
Прочети още
Ипотечен кредитен калкулатор
София Модерно предградие Двустаен апартамент
Зареждаме...
