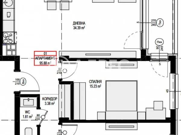
Модерна жилищна сграда В овча Купел 2, част от мащабен комплекс с обща визия и инфраструктура, от инвеститор с доказано качество на строителство и солидна репутация на пазара. Стилен дизайн и функционални разпределения, разположен в предпочитан район с удобна градска инфраструктура. Просторен тристаен апартамент, с източно изложение състоящ се от: входно антре, дневна с трапезария и кухненски бокс, две спални, тераса, баня с тоалетна и отделна тоалетна. Без комисиона от купувача! Сградата се намира на кратко пешеходно разстояние от Нов Български университет, както и метростанция "Мизия". Трети етап на комплекс "South Project". Сграда от 3 входа, на 9 етажа. Богат избор от жилища с една или две спални. Отопление на газ. Контролиран достъп, асансьор, висок клас дограма и топлоизолация Обади се сега и цитирай този код Z-670257

Вход


Или
Все още нямаш профил?
Създай профил
1 / 4











3-стаен, Овча Купел, София
€209,290 / 409,336 лв.
(€1,852 / 3,622 лв. / кв.м)
Характеристики
квадратура
брой стаи
година на строеж
етаж
Особености на имота
- Просторно жилище
- Популярен квартал
- Детски градини
Описание
Прочети още
Наблизо има
В непосредствена близост се намират:
Бар
Marin Marinov892м
Банкомат
673м
Ресторант
Терес851м
Аптека
ФармаСтор702м
Транспорт
Най-близки спирки на градски транспорт до адреса:
Метро
Автобусни линии
Трамвайни линии
Училища и детски градини
Детски градини
Начални
Основни
Средни
Име
Адрес
Ясла
Разстояние
Ипотечен кредитен калкулатор
София Овча Купел Тристаен апартамент