Красива и модерна сграда с изцяло окачена вентилируема фасада, дограма най-висок клас - 7 камерна с троен стъклопакет.
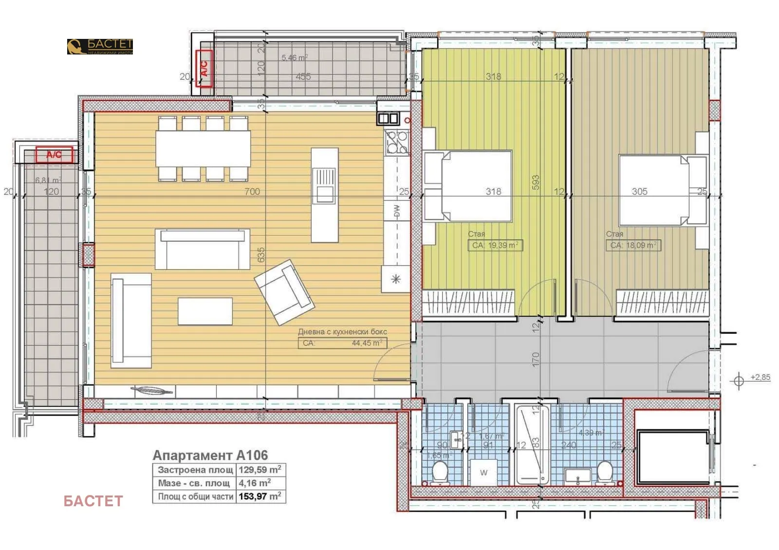
Южен тристаен апартамент със ЗП 130 кв.м, състои се от входно антре, дневна с трапезария и кухненски бокс 44.45 кв.м, две спални по 18 и 19 кв.м, баня с тоалетна,отделно тоалетна,мокро помещение, две тераси. В цената е включен склад 4.16 кв.м. Ако търсите апартамент с по-голяма площ, все още могат да се обединят два съседни апартамента, при което се получава просторен тристаен или четиристаен апартамент. Възможност за закупуване на гараж или паркомясто. При оглед ще ви покажем и други свободни апартаменти. Очакван Акт 16 - началото на 2026 г. Разсрочена схема на плащане. Местоположението е в местност Гърдова глава, на около 200 метра от кръстовището на бул. Цар Борис III и бул.Никола Петков и спирки на градски транспорт - трамвай 5, автобуси 111 и 260 с бърз достъп до центъра и по Околовръстен път. Недалеч е новоизградения Ритейл парк Княжево.
Красива и модерна сграда с изцяло окачена вентилируема фасада, дограма най-висок клас - 7 камерна с троен стъклопакет, четворна хидроизолация на покрива и покривните тераси. Строителство с най висок клас строителни материали. Сградата се изпълнява с водоплътен бетон клас С25/30, който е над изискванията по проект и с него се строят много високи сгради. Асансьор - 8 местен. При интерес ще ви покажем останалите свободни апартаменти.
Инвеститорът - доказан във времето и с отлична репутация пред кредитиращите банки. Строителната компания е собственик на парцела, върху който се строи и ползва собствени средства за строителството, което значително намалява риска при покупка. Опит в строителството - 24 години. Възможност за покупка на гараж или паркомясто. Съдействие за кредитиране. За контакти: 0988921982; 0897565147
1 / 17





































3-стаен, м. Гърдова глава, София
€397,121 / 776,701 лв.
(€2,513 / 4,915 лв. / кв.м)
Характеристики
квадратура
брой стаи
година на строеж
етаж
Вид строителство
Вид отопление
Особености на имота
- Асансьор
Описание
Прочети още
Ипотечен кредитен калкулатор
София м. Гърдова глава Тристаен апартамент
Зареждаме...