Локация: границата между кв.'Малинова долина' и в.з.'Американски колеж', ул.'Крикор Азарян';
Етап на строежа: груб строеж (акт 14);
Срок за въвеждане в експлоатация: лято 2026г.;
Изложение: Юг/Запад;
Сграда: затворен комплекс;
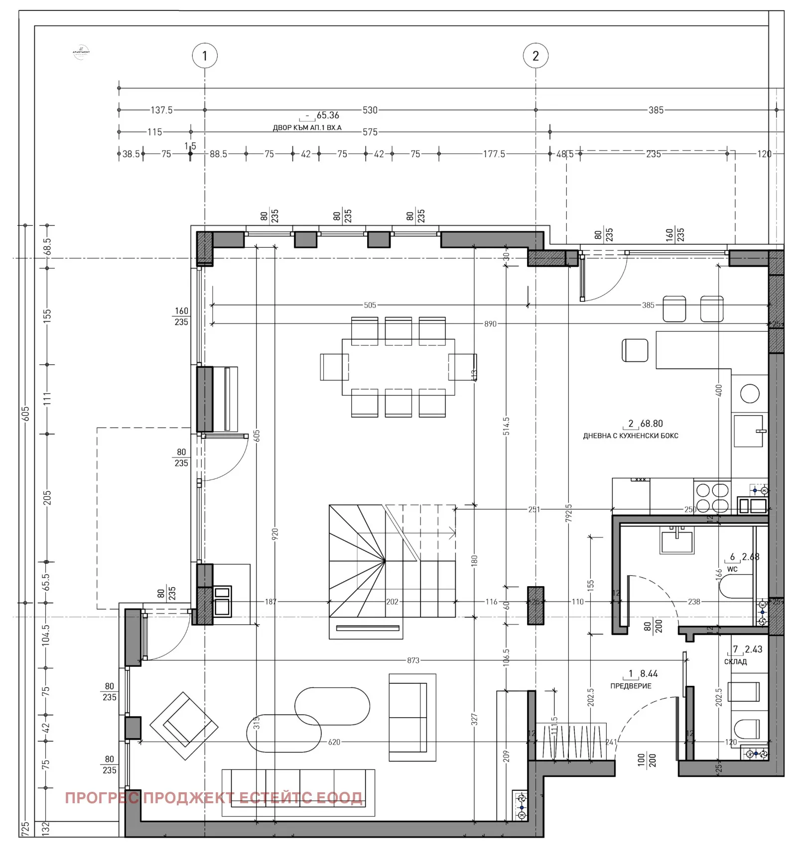
Вид на имота: Четиристаен мезонет на партер, със собствен двор;
Разпределение ниво 1(90 кв.м.): дневна, кухненски тракт с трапезария - приблизително 70 кв.м., санитарен възел с баня, склад, двор (65 кв.м.);
Разпределение ниво 2(98 кв.м.): три спални, две бани, две тераси;
Възможност за закупуване на паркоместа.
За повече информация и организиране на огледи, моля обадете се на телефонен номер:+359887600395
1 / 5













Многостаен, Малинова долина, София
€585,000 / 1,144,161 лв.
(€2,555 / 4,997 лв. / кв.м)
Характеристики
квадратура
брой стаи
година на строеж
Особености на имота
- Асансьор
- С гараж
- С паркомясто
- Контрол на достьпа
- Затворен комплекс
Описание
Прочети още
Ипотечен кредитен калкулатор
София Малинова долина Многостаен апартамент
Зареждаме...
