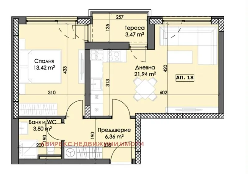
Facebook Pixel 2-стаен в Пловдив за 76,809€ - Zimoti
Logo