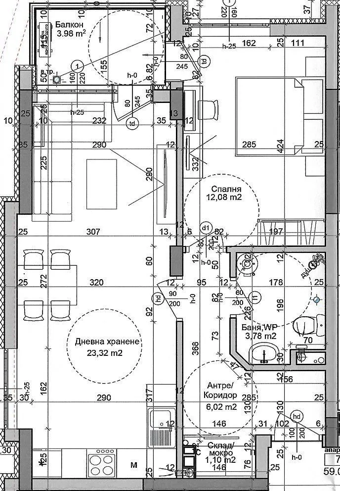
Facebook Pixel 2-стаен в Бургас за 117,000€ - Zimoti
Logo