✅ БЕЗ КОМИСИОННА ОТ КУПУВАЧА!!!✅ Оферта 8134. Агенция Гаранти представя на Вашето внимание непреходен, двустаен апартамент в новостроящ се модерен комплекс на етап среда на строеж.✅ Жилището се състои от входно антре, хол с кухня, спалня, баня с тоалетна, килер..✅ Изложение на апартамента- запад.✅ Издава се спрямо БДС: Стени- шпакловка, под-замазка, ЕЛ-инсталация до ключ, ВиК - до тапа, ПВЦ- дограма, външна блиндирана врата.✅ Характеристики на сградата: Стилна и красива фасада, отлична архитектура с предпочитани изложения, удобни разпределения на апартаментите, луксозно завършени общи части.✅ Възможност за закупуване допълнително на паркомясто или гараж➡️ Нашите Услуги:➡️ Търсене на имот-индивидуален подбор според зададени критерии.➡️ Огледи на имоти: В присъствието на квалифициран брокер.➡️ Продажби на готови и новостроящи се имоти.➡️ Наеми: Съдействие при отдаване и наемане на недвижим имот.➡️ Оценки и консултации-експертен анализ и професионални съвети.➡️ Юридически услуги- пълно правно съдействие при сделки с недвижими имоти.➡️ Управление и стопанисване на имоти- цялостна грижа за вашата собственост➡️ Кредитно съдействие:➡️ Агенция Гаранти Ви предлага да се възползвате от професионално кредитно посредничество чрез Credit Center при ипотека, потребителски кредит и рефинансиране! -УСЛУГАТА Е ИЗЦЯЛО БЕЗПЛАТНА! -ИЗГОТВЯНЕ НА НЯКОЛКО ОФЕРТИ ОТ ВОДЕЩИ БАНКИ! -НАЙ-ИЗГОДНИ УСЛОВИЯ СПРЯМО ВАШИЯТ ПРОФИЛ! -НЕ Е НЕОБХОДИМО ДА СЕ РАЗКАРВАТЕ ВЪВ ВСЕКИ КЛОН НА РАЗЛИЧНИ БАНКИ!📞 За повече информация и оглед се обадете на посочения телефон! Виж всички обяви в garanti.bazar.bg или тук

Вход
Или
Все още нямаш профил?
Създай профил
1 / 4











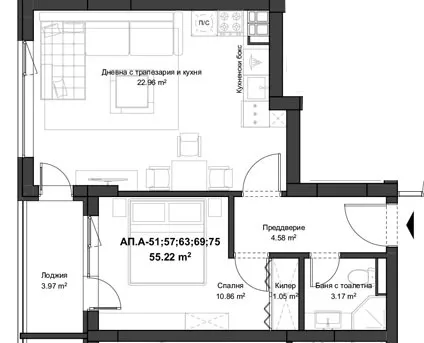
2-стаен, Беломорски, Пловдив
€79,766 / 156,009 лв.
(€1,227 / 2,400 лв. / кв.м)
Характеристики
квадратура
брой стаи
година на строеж
етаж
Особености на имота
- Популярен квартал
- Саниран блок
- С гараж
- С паркомясто
Описание
Прочети още
Наблизо има
В непосредствена близост се намират:
Ресторант
Note Di Vino672м
Училища и детски градини
Детски градини
Начални
Основни
Средни
Име
Адрес
Ясла
Разстояние
Ипотечен кредитен калкулатор
Пловдив Беломорски Двустаен апартамент
