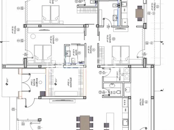
Страхотна еднофамилна къща в най-хубавата част на гр. Костинброд. Къщата е на един етаж със застроена площ от 330кв.м. , двор с площ от 894кв.м. и опцията за надстрояване на цялата плоча със същата квадратура. Разпределение: входно антре, просторна всекидневна с отделна мека мебел и голяма кухня, четири непреходни спални, три бани с тоалетни, отделно мокро помещение, опция за отделеня на отделен апартамент за всякакви нужди, голям двоен гараж. Имотът е в перфектно състояние , напълно обзаведен и обородуван, подходящ за живеене и от няколко семейства. Красиво аранжиран двор със зеленина и перфектна организация за летните месеци. Голям двоеж гараж на разположение за бъдещите собствениците.
Най-добрата и комуникативна част на гр. Костинброд.
Нова масивна тухлена къща с модерна визия и приятен двор.
Локация, модерна визия, потенциал, готов имот.
Обади се сега и цитирай този код Z-681084




















