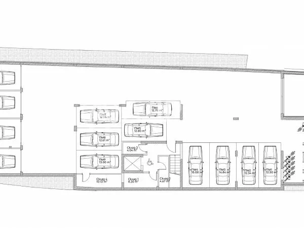
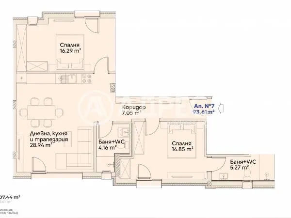
Тристаен апартамент с РЗП-107,44м2, ЗП-93,61м2 със следното разпределение: на етаж първи над партер са разположени: антре, дневна с трапезария и кухненски бокс- 28,94м2, две спални -14,85м2 с баня към нея - 5,27м2, втора спалня-16,29м2, още една баня с тоалетна-4,16м2. Изводи за термопомпа, при желание може и подово отопление. Подземни ПМ и гаражи. BOUTIQUE – новият стандарт за градски лукс в Манастирски ливади. Представяме ви BOUTIQUE – ексклузивна жилищна сграда в манастирски ливади, отличаваща се с впечатляваща архитектура, премиум изпълнение и усещане за уединение в сърцето на южните квартали. Проектът включва само 10 внимателно проектирани жилища, сред които два емблематични мезонета. Партерните апартаменти разполагат със собствени частни градини, превръщащи ежедневието в истинско спокойствие. Към улицата са ситуирани две представителни офис помещения. Локацията осигурява перфектна свързаност – непосредствен достъп до бул. „България“ и Околовръстен път, както и близост до търговски центрове, образователни институции и зелени пространства. BOUTIQUE – дом, който съчетава стил, комфорт и престиж. Удобен транспорт, бърз достъп до Околовръстен път и бул. България. Автобус 64,304,X10, Тролей 2. В района има детска градина, супермаркет, фитнес. Бутикова луксозна сграда, съчетаваща модерна архитектура, престижна локация и висок клас изпълнение. Отлична локация в район с изградена инфраструктура. Обади се сега и цитирай този код Z-676870

Вход
Или
Все още нямаш профил?
Създай профил
1 / 4











3-стаен, Манастирски ливади, София
€300,832 / 588,376 лв.
(€2,785 / 5,447 лв. / кв.м)
Характеристики
квадратура
брой стаи
година на строеж
етаж
Описание
Прочети още
Наблизо има
В непосредствена близост се намират:
Бар
Пицария Премиум908м
Банкомат
610м
Ресторант
Виктория415м
Аптека
Стела651м
Паркинг
581м
Кафене
776м
Училища и детски градини
Детски градини
Начални
Основни
Средни
Няма намерени детски градини
Ипотечен кредитен калкулатор
София Манастирски ливади Тристаен апартамент
