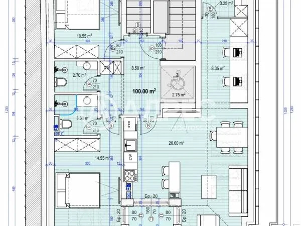
Адресни Движими Имоти представя на Вашето внимание нов жилищен проект в идеалния център на гр. София – малка сграда с едва 10 апартамента и 10 паркоместа. Сградата е на етап преди издаване на Разрешение за строеж, което предоставя отлична възможност за ранна инвестиция при изключително атрактивни условия. Тристаен апартамент състоящ се от: • Две спални • Просторна дневна с кухненски бокс • Две бани • Напълно самостоятелна покривна тераса • Функционално разпределение и максимално използване на пространството Без комисион от купувача. Имотът се намира в една от най-търсените и комуникативни зони на столицата – в близост до: • НДК • ул. „Витошка“ • парк „Възраждане“ • Mall of Sofia • ключови булеварди и удобен градски транспорт В същото време мястото е изключително тихо, с паркова среда и отлично усещане за уединение в сърцето на града. Сградата ще бъде изпълнена с висок клас строителство, отговарящо на всички съвременни изисквания за комфорт, енергийна ефективност и дълготрайност. • Фасада от естествен камък, придаваща представителна визия и устойчивост във времето • Общи части с гранитогрес и дизайнерско осветление • Висок клас дограма с отлична шумо- и топлоизолация • Модерен асансьор от водещ европейски производител • Контролиран достъп Сградата ще предлага съвременно качество на живот, съчетаващо лукс, тишина и отлична градска локация. Обади се сега и цитирай този код Z-655348

Вход
Или
Все още нямаш профил?
Създай профил
1 / 4











3-стаен, Център - Запад, София
€498,467 / 974,917 лв.
(€2,950 / 5,770 лв. / кв.м)
Характеристики
квадратура
брой стаи
година на строеж
етаж
Особености на имота
- Южно изложение
- Просторно жилище
- Детски градини
Описание
Прочети още
Наблизо има
В непосредствена близост се намират:
Бар
Магданоз339м
Банкомат
Алианц Банк215м
Ресторант
Островчето267м
Аптека
204м
Паркинг
355м
Кафене
161м
Транспорт
Най-близки спирки на градски транспорт до адреса:
Метро
Автобусни линии
Трамвайни линии
15
4
5
Училища и детски градини
Детски градини
Начални
Основни
Средни
Име
Адрес
Ясла
Разстояние
Ипотечен кредитен калкулатор
София Център - Запад Тристаен апартамент
