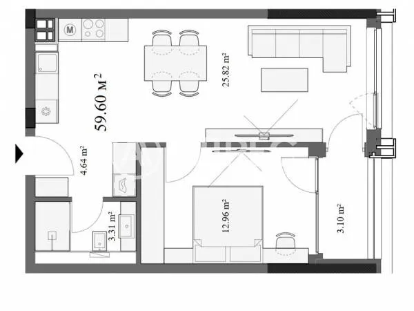
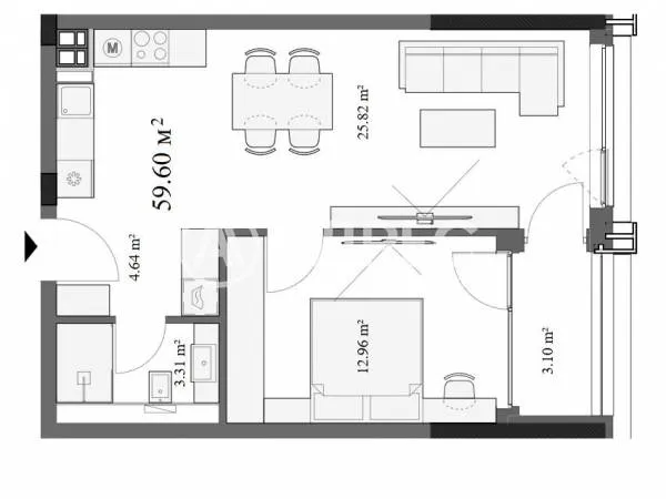
Двустаен апартамент с Южно изложение. От входно антре с място за склад се влиза в Дневна зона - 26кв.м, която може да се зонира на кухненски бокс с трапезария и холна част; спалня ; тераса с излаз и от двете стаи; баня с тоалетна.
Сгради ново строителство, в начален етап, с възможност за голям избор на тип апартаменти, паркоместа и търговски помещения. Разнообразие от разпределения, етаж, изложение и цена. Възможност за разсрочено плащане и банков кредит при преференциални условия.
На 5 минути пеша от две метростанции- “Овча купел” и метростанция „Мизия/НБУ“. Комплексът е стратегически разположен което го прави лесно достъпен както с обществен транспорт, така и с автомобил.
Новa концепция на жилищен комплекс - комбинация от съвременен дизайн, богато озеленяване и допълнителни удобства.
Озеленено пространство създава усещане за завършеност и природна среда, а покривната тераса предоставя място за отдих и социални зони.
Етап на строителство : шеста плоча
Акт 14 - февруари.2027
Очакван акт.16 - юни.2028
Възможност за разсрочено плащане и банков кредит при преференциални условия.
Инвеститор с множество реализирани сгради
Утвърден строител с безапелационна организация и качествено изпълнение.
Сред основните предимства на този проект са:
- етап, с възможност за избор на имот при най- добрите условия за цена и начин на плащане
- непосредствена близост до две метростанции
- отличителна концепция
- високо качество на изпълнение








