Код оферта:33783.
✅ Морска панорама.
✅ Статут: апартамент. Без преход.
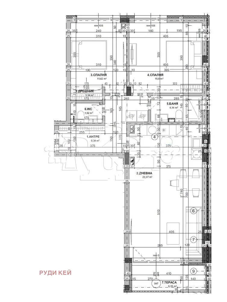
👉 Представяме Ви голямо тристайно жилище състоящо се от коридор, всекидневна с кухненска част 30кв.м., две спални 16кв.м. и 12в.м., тераса, баня с тоалетна, отделно тоалетна, ниша за пералня и сушилня. Към имота има прилежащо избено помещение с големина 5.40кв.м.
👉 Завършване съгласно БДС - ПВЦ дограма, ВиК инсталация на тапа . ЕЛ инсталация: контакти, ключ и фасунги. Шпакловани стени. Екстериорна блиндирана врата. Предвижда се луксозно оформление на общите части, декоративна мазилка и топлоизолирана фасада.
👉 Възможност за закупуване на подземни и надземни паркоместа.
👉 Жилището се намира в кв. Виница, c дoбpa тpaнcпopтнa oбeзпeчeнocт, c oтлични ĸoмyниĸaции и нeoбxoдимaтa coциaлнa инфpacтpyĸтypa, училища и детски градини, супермаркети.
За контакт и оглед - брокер недвижими имоти: Дарин Щерев
'РУДИ КЕЙ': Компанията предлага всички необходими юридически и технически проверки на имота, както и възможностите за оптималната им реализация, организира всички етапи на сделка за покупко-продажба или наемни отношения до нейното финализиране с нотариално прехвърляне на имота. Съдейства за отпускане на банкови кредити при възможно най-добри условия за клиента. Компанията е регистрирана по ЗЗЛД като администратор на лични данни, което гарантира сигурността на клиентите. Ако проявявате интерес към тази оферта, необходима Ви е допълнителна информация, желаете да направите оглед на имота, оставаме на Ваше разположение за всякакви въпроси.
За контакт и оглед - брокер недвижими имоти: Дарин Щерев

Вход
Или
Все още нямаш профил?
Създай профил
1 / 7

















3-стаен, Траката, Варна
€158,000 / 309,021 лв.
(€1,411 / 2,760 лв. / кв.м)
Характеристики
квадратура
брой стаи
година на строеж
етаж
Описание
Прочети още
Ипотечен кредитен калкулатор
Варна Траката Тристаен апартамент
